

Vòi cảm ứng tự động TOTO TLE25010V gắn tường là giải pháp vệ sinh thông minh giúp triệt tiêu hoàn toàn nỗi lo lây nhiễm chéo vi khuẩn qua việc tiếp xúc trực tiếp với thiết bị. Với công nghệ cảm biến hồng ngoại nhạy bén, sản phẩm này định nghĩa lại tiêu chuẩn tiện nghi và khả năng tiết kiệm nước vượt trội cho các công trình kiến trúc hiện đại.

Vòi cảm ứng tự động TOTO TLE25010V

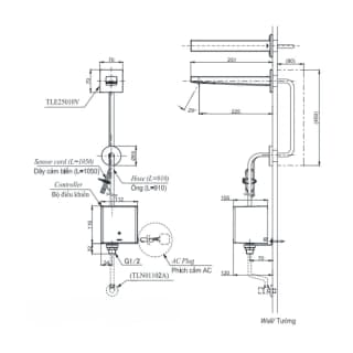
Bản viết kỹ thuật vòi cảm ứng tự động TOTO TLE25010V
Vệ sinh an toàn: Nhờ cơ chế vận hành không chạm, vòi cảm ứng tự động TOTO TLE25010V bảo vệ sức khỏe người dùng bằng cách ngăn chặn sự lây lan của vi khuẩn và virus trong không gian vệ sinh chung.
Cảm biến hồng ngoại siêu nhạy: Mắt hồng ngoại thu phát tín hiệu cực nhanh giúp vòi cảm ứng tự động TOTO TLE25010V đóng mở nước tức thì ngay khi nhận diện tay người dùng, mang lại trải nghiệm sử dụng mượt mà và tiện lợi.
Tối ưu lượng nước tiêu thụ: Sử dụng vòi cảm ứng tự động TOTO TLE25010V loại bỏ hoàn toàn tình trạng lãng phí nước do quên tắt vòi, giúp tối ưu chi phí vận hành cho cả gia đình và các khu vực công cộng.
Độ bền cao, ít hỏng hóc: Thiết kế tinh giản không cần gạt cơ học của vòi cảm ứng tự động TOTO TLE25010V giúp hạn chế các hư hỏng vật lý thường gặp, từ đó tiết kiệm tối đa chi phí sửa chữa và thay thế linh kiện.
Chất liệu đồng mạ cao cấp: Được đúc từ đồng mạ Niken-Crom sáng bóng, vòi cảm ứng TOTO TLE25010V không chỉ sở hữu vẻ ngoài sang trọng mà còn có khả năng chống ăn mòn cực tốt trong môi trường ẩm ướt.
Linh hoạt nguồn điện năng: Người dùng có thể tùy chọn lắp đặt vòi cảm ứng tự động TOTO TLE25010V với bộ điều khiển dùng pin, điện lưới hoặc bộ tái tạo năng lượng từ dòng nước tùy theo nhu cầu và điều kiện thực tế.
Hãy đến ngay hệ thống Showroom Hải Linh để trải nghiệm thực tế và sở hữu vòi cảm ứng tự động TOTO TLE25010V chính hãng với mức chiết khấu hấp dẫn nhất thị trường.