

Vòi cảm ứng tự động TOTO TLE25006V sở hữu thiết kế cổ thấp gọn gàng, là giải pháp hoàn hảo để lắp đặt trên chậu hoặc bàn đá trong các không gian kiến trúc hiện đại. Sản phẩm trang bị công nghệ cảm ứng tiên tiến giúp vận hành không chạm, mang lại sự tiện nghi vượt trội và vệ sinh sạch sẽ cho người dùng.

Vòi cảm ứng tự động TOTO TLE25006V

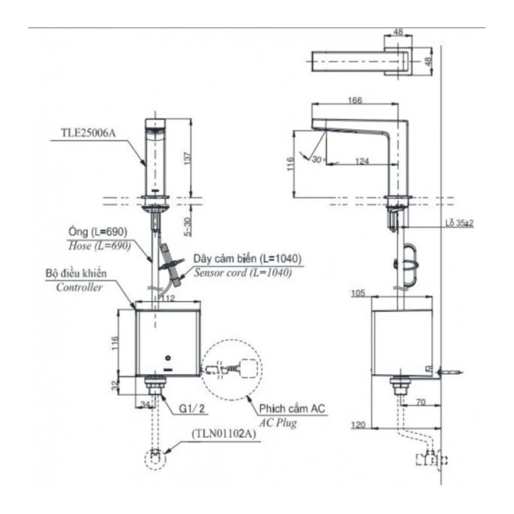
Bản vẽ kỹ thuật vòi cảm ứng tự tự động TOTO TLE25006V
Công nghệ tự tạo điện: Vòi cảm ứng tự động TOTO TLE25006V trang bị công nghệ SELF POWER giúp tự tạo năng lượng từ dòng chảy, đảm bảo thiết bị vận hành bền bỉ mà không cần nguồn điện ngoài.
Dòng chảy êm ái: Nhờ công nghệ SOFT FLOW, vòi cảm ứng TOTO TLE25006V tạo ra dòng nước mềm mại, không gây văng bắn, mang lại cảm giác dễ chịu và giữ cho khu vực chậu rửa luôn khô ráo.
Cảm biến siêu nhạy: Mắt cảm biến được đặt kín đáo ngay dưới đầu vòi giúp vòi cảm ứng tự động TOTO TLE25006V nhận diện người dùng nhanh chóng và chính xác trong mọi điều kiện ánh sáng.
Tiết kiệm nước tối ưu: Với công nghệ ECO CAP tạo bọt khí và lưu lượng nước chỉ 2L/phút, vòi cảm ứng tự động TOTO TLE25006V giúp giảm thiểu đáng kể hóa đơn tiền nước hàng tháng.
Chất liệu bền bỉ: Được sản xuất từ đồng mạ Ni/Cr cao cấp, vòi cảm ứng tự động TOTO TLE25006V có khả năng chống oxy hóa tuyệt vời và luôn giữ được vẻ sáng bóng, sang trọng theo thời gian.
Thiết kế gọn gàng: Vòi cảm ứng tự động TOTO TLE25006V có kích thước tâm xả 124mm với kiểu dáng cổ thấp, cực kỳ phù hợp để lắp đặt trên chậu hoặc bàn đá trong những không gian hiện đại.
Quý khách hãy liên hệ ngay với Showroom Hải Linh để sở hữu vòi cảm ứng tự động TOTO TLE25006V chính hãng với mức giá ưu đãi và chế độ bảo hành uy tín từ nhà sản xuất.