

Chậu rửa dương bàn COTTO C0900 thuộc dòng Quado 90 là mẫu lavabo đặt bàn nổi bật với thiết kế hình chữ nhật hiện đại và kích thước rộng rãi. Nhờ kiểu dáng tinh gọn cùng bề mặt sứ sáng bóng, chậu rửa vừa đảm bảo tính thẩm mỹ vừa đáp ứng tốt nhu cầu sử dụng hằng ngày.

Chậu rửa Cotto C0900

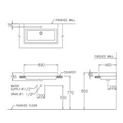
Bản vẽ kỹ thuật Chậu rửa Cotto C0900
Thiết kế Quado 90 vuông vắn, hiện đại: Chậu rửa dương bàn Cotto C0900 nổi bật với thiết kế Quado 90 có các đường nét vuông gọn và rõ ràng. Kiểu dáng này tạo điểm nhấn mạnh mẽ, phù hợp với phòng tắm theo phong cách hiện đại. Nhờ đó, Cotto C0900 giúp không gian lavabo trở nên gọn gàng và sang trọng hơn.
Lòng chậu sâu và phẳng, hạn chế văng nước: Lòng chậu của chậu rửa dương bàn Cotto C0900 được thiết kế với độ sâu hợp lý và đáy phẳng. Cấu trúc này giúp chứa nước tốt hơn trong quá trình sử dụng hằng ngày. Đồng thời, thiết kế còn giúp hạn chế nước bắn ra mặt bàn khi rửa tay hoặc vệ sinh.
Tích hợp lỗ xả tràn an toàn: Chậu rửa Cotto C0900 được trang bị lỗ xả tràn giúp kiểm soát lượng nước trong lòng chậu. Khi nước dâng cao, hệ thống xả tràn sẽ hỗ trợ thoát nước, hạn chế tình trạng tràn ra ngoài. Nắp đậy lỗ xả tràn đi kèm còn tăng tính thẩm mỹ cho khu vực lavabo Cotto C0900.
Chất liệu Ceramic bền chắc: Chậu rửa dương bàn Cotto C0900 được sản xuất từ chất liệu Ceramic cao cấp. Bề mặt men sứ trắng bóng giúp tăng độ bền và chống trầy xước trong quá trình sử dụng. Nhờ vậy, sản phẩm giữ được vẻ sáng sạch lâu dài và phù hợp cho nhiều không gian phòng tắm.
Sở hữu thiết kế hiện đại, kích thước lớn cùng chất liệu sứ bền đẹp, chậu rửa dương bàn COTTO C0900 là lựa chọn phù hợp cho những không gian phòng tắm đề cao sự tiện nghi và sang trọng. Sản phẩm giúp khu vực lavabo trở nên gọn gàng, sạch sẽ và tạo điểm nhấn thẩm mỹ cho tổng thể nội thất.
Quý khách có thể tham khảo và trải nghiệm trực tiếp sản phẩm tại showroom Hải Linh để được tư vấn chi tiết và lựa chọn mẫu chậu rửa phù hợp.