



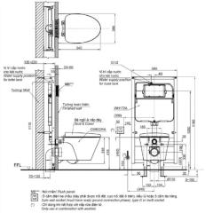
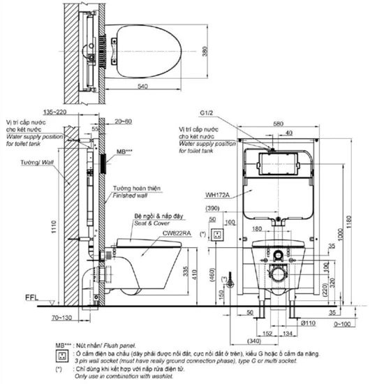
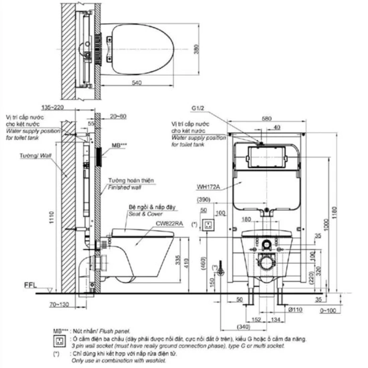
Hệ thống xả: Xả xoáy Tornado
Tâm xả: 220 mm
Lượng nước xả: 4.5L/3L
Thiết kế: Thân dài
Kích thước: 540D x 380W x 335H mm
Bồn cầu treo tường TOTO CW822RA/TC600VS/WH172A/MB170P#SS là bộ sản phẩm cao cấp gồm thân cầu, nắp êm, két nước âm tường và nút nhấn đồng bộ, mang đến thiết kế tối giản, gọn gàng và tối ưu diện tích phòng tắm. Bồn cầu nổi bật với hệ thống xả xoáy Tornado 4.5L/3L mạnh mẽ, vận hành êm ái cùng men sứ chống bám bẩn, giúp vệ sinh hiệu quả và dễ dàng lau chùi.
Tìm hiểu về bồn cầu thông minh TOTO CW822RA/TC600VS/WH172A/MB170P

Bản vẽ kỹ thuật bồn cầu thông minh TOTO CW822RA/TC600VS/WH172A/MB170P
Thiết kế sang trọng chuẩn phong cách hiện đại: Kiểu dáng tinh tế với các đường nét gọn gàng mang đến tổng thể thanh lịch và đẳng cấp cho không gian phòng tắm. Bồn cầu TOTO CW822RA/TC600VS/WH172A/MB170P không chỉ là thiết bị vệ sinh mà còn đóng vai trò như điểm nhấn nội thất cao cấp.
Nắp đóng êm vận hành nhẹ nhàng: Trang bị cơ chế giảm chấn giúp nắp và bệ ngồi đóng mở êm ái, hạn chế tiếng ồn khi sử dụng. Tính năng này tăng độ bền bồn cầu, đồng thời mang lại cảm giác dễ chịu cho cả gia đình, đặc biệt vào ban đêm.
Thiết kế treo tường tối ưu diện tích: Cấu trúc treo tường kết hợp két nước âm tường giúp tiết kiệm không gian đáng kể, tạo cảm giác phòng tắm rộng và thoáng hơn. Bồn cầu TOTO CW822RA/TC600VS/WH172A/MB170P đặc biệt phù hợp với căn hộ hiện đại và các công trình cần tối ưu diện tích sử dụng.
Bề mặt nước rộng ngăn mùi hiệu quả: Diện tích mặt nước lớn giúp giảm thiểu tình trạng bám bẩn và hạn chế mùi hôi phát sinh. Nhờ đó, không gian nhà vệ sinh luôn sạch sẽ, khô thoáng và đảm bảo vệ sinh lâu dài.
Dễ dàng vệ sinh bên dưới thân cầu: Khoảng trống phía dưới thân cầu giúp việc lau chùi sàn nhà trở nên nhanh chóng và thuận tiện hơn. Thiết kế thân kín còn hạn chế các góc khuất tích tụ vi khuẩn, tiết kiệm thời gian và chi phí bảo dưỡng.
Vòi rửa đa chức năng chăm sóc: Vòi rửa tích hợp nhiều chế độ phun linh hoạt, mang lại khả năng làm sạch nhẹ nhàng nhưng hiệu quả. Người dùng có thể tận hưởng cảm giác vệ sinh thoải mái, êm ái và nâng cao trải nghiệm sinh hoạt hằng ngày.
Men sứ CeFiONtect chống bám bẩn vượt trội: Lớp men CeFiONtect siêu nhẵn giúp ngăn cặn bẩn và vi khuẩn bám dính trên bề mặt. Nhờ vậy, bồn cầu TOTO CW822RA/TC600VS/WH172A/MB170P luôn giữ được độ sáng bóng, sạch sẽ và giảm thiểu nhu cầu sử dụng hóa chất tẩy rửa.
Men sứ CEFIONTECT TOTO chống bám bẩn
Xả xoáy Tornado, mạnh mẽ, tiết kiệm nước: Công nghệ xả Tornado tạo dòng xoáy 360° cuốn trôi chất thải nhanh chóng mà vẫn vận hành êm ái. Hệ thống xả tối ưu giúp tiết kiệm nước hiệu quả, góp phần bảo vệ môi trường và giảm chi phí sinh hoạt.
Xả xoáy Tornado TOTO mạnh mẽ
Với độ bền cao, khả năng tiết kiệm nước và kiểu dáng sang trọng, bồn cầu TOTO CW822RA/TC600VS/WH172A/MB170P là lựa chọn lý tưởng cho không gian hiện đại và tiện nghi. Quý khách có thể tham khảo, trải nghiệm bồn cầu chính hãng tại showroom Hải Linh để được tư vấn và nhận giá tốt nhất.