



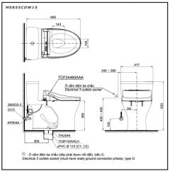
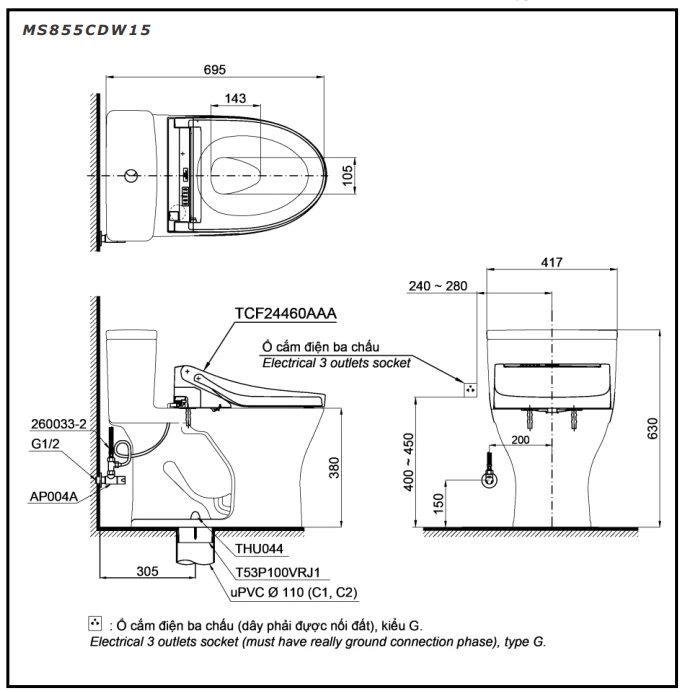
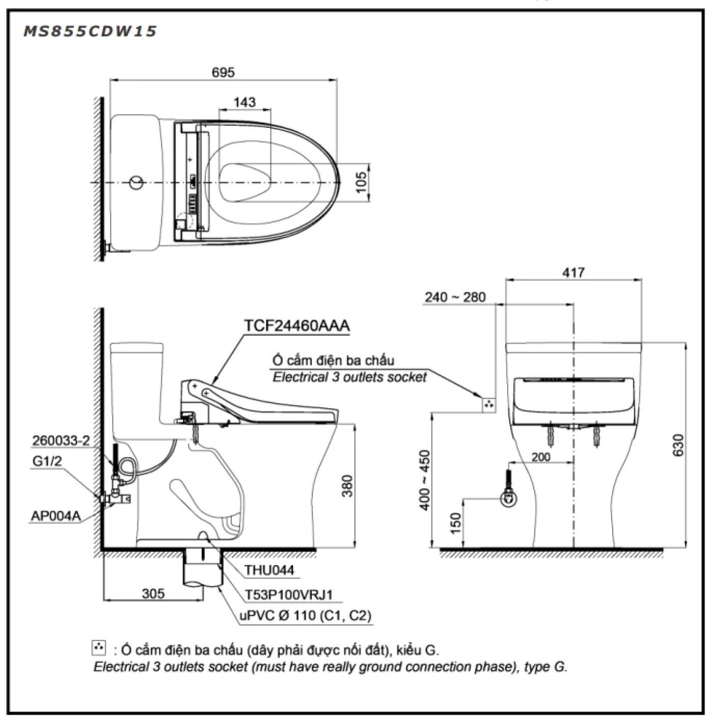
Kích thước: 695D x 417W x 630H mm
Màu sắc: Trắng
Hệ thống xả: Tornado
Lượng nước xả: 4.8L/3L
Thiết kế: Thân dài, thân hở
Bồn cầu điện tử TOTO MS855CDW15 là sự kết hợp hoàn hảo giữa thiết kế một khối sang trọng và nắp rửa Washlet thông minh, mang đến chuẩn mực vệ sinh đẳng cấp. Với việc tích hợp hàng loạt công nghệ đột phá như xả xoáy Tornado và khử khuẩn Ewater+, sản phẩm vừa đảm bảo sạch khuẩn tối ưu, vừa đem lại trải nghiệm tiện nghi cho người sử dụng.
Thông tin chi tiết về bồn cầu điện tử TOTO MS855CDW15
Lưu ý: Bao gồm bích nối sàn, van dừng

Bản vẽ kỹ thuật bồn cầu điện tử TOTO MS855CDW15
Thiết kế giấu dây hiện đại: Bồn cầu điện tử TOTO MS855CDW15 gây ấn tượng với thiết kế giấu dây thông minh, giúp loại bỏ các chi tiết thừa và dây điện rườm rà. Ưu điểm này không chỉ mang lại vẻ đẹp tinh tế, sang trọng cho không gian phòng tắm mà còn giúp việc vệ sinh thiết bị trở nên dễ dàng hơn.
Men sứ chống dính CEFIONTECT: Bề mặt của bồn cầu TOTO MS855CDW15 được bao phủ bởi lớp men CEFIONTECT siêu nhẵn mịn, ngăn chặn chất bẩn và vi khuẩn bám dính. Lớp men độc quyền này giúp lòng bồn cầu luôn sáng bóng theo thời gian và hạn chế tối đa việc sử dụng các hóa chất tẩy rửa độc hại.

Ưu điểm nổi bật của bồn cầu điện tử TOTO MS855CDW15
Hệ thống xả xoáy Tornado: Bồn cầu điện tử TOTO MS855CDW15 sở hữu công nghệ xả Tornado với dòng nước xoáy 360 độ siêu mạnh, giúp cuốn trôi mọi vết bẩn chỉ trong một lần xả. Dù có lực xả cực lớn nhưng hệ thống này vẫn vận hành siêu êm và tiết kiệm nước tối ưu, không gây tiếng ồn khó chịu khi sử dụng vào ban đêm.
Công nghệ khử khuẩn Ewater+: Vòi rửa của bồn cầu luôn được đảm bảo sạch sẽ nhờ công nghệ nước điện phân Ewater+ giúp tiêu diệt 99,9% vi khuẩn. Nước điện phân sẽ tự động khử trùng vòi rửa định kỳ, mang lại sự an tâm tuyệt đối về vệ sinh và bảo vệ sức khỏe cho cả gia đình.
Vòi rửa massage đa chức năng: Người dùng sẽ được tận hưởng cảm giác thư giãn với hệ thống vòi rửa massage nhiều chế độ trên bồn cầu điện tử TOTO MS855CDW15. Dòng nước ấm được tích hợp bọt khí giúp làm sạch nhẹ nhàng, êm ái mà vẫn đảm bảo hiệu quả vệ sinh sạch sâu vượt trội.

Sản phẩm tích hợp nắp rửa điện tử WASHLET dòng C5 thông minh
Tự vệ sinh vòi rửa thông minh: Trước và sau mỗi lần sử dụng, bồn cầu điện tử TOTO MS855CDW15 đều kích hoạt chế độ tự làm sạch vòi rửa bằng nước tinh khiết. Quy trình tự động này đảm bảo vòi rửa luôn trong tình trạng vô trùng, ngăn ngừa hoàn toàn nguy cơ lây nhiễm chéo vi khuẩn.
Sấy khô, khử mùi và sưởi ấm: Bồn cầu điện tử TOTO MS855CDW15 tích hợp đầy đủ các tiện ích cao cấp như sấy khô bằng khí ấm, khử mùi tự động và sưởi ấm bệ ngồi tức thì. Những tính năng thông minh này không chỉ giữ cho phòng tắm luôn thông thoáng mà còn mang lại sự thoải mái, ấm áp trong suốt mùa đông giá rét.
Hãy sở hữu ngay bồn cầu điện tử TOTO MS855CDW15 tại hệ thống Showroom Hải Linh để nhận báo giá ưu đãi cùng chính sách bảo hành chính hãng và hỗ trợ lắp đặt tận tâm cho công trình của bạn.