

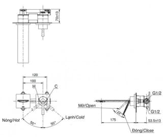
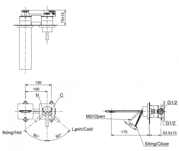
Kích thước: 175 mm (Từ tâm xả nước đến tường)
Chất liệu: Thép không gỉ
Áp lực nước: 0.05 ~ 1.0 MPa
Lưu ý: Không bao gồm bộ xả và ống thải chữ P
Vòi chậu TOTO TLP02309BA gây ấn tượng với thiết kế uốn cong mềm mại, là giải pháp tối ưu cho những không gian nhà tắm có diện tích giới hạn. Sản phẩm sở hữu lớp mạ Niken-Crom 3 lớp bền vững cùng công nghệ van đĩa sứ Nhật Bản, mang lại sự tiện nghi và vẻ đẹp sáng bóng vượt thời gian.

Tìm hiểu về vòi chậu TOTO TLP02309BA

Bản vẽ kỹ thuật vòi chậu TOTO TLP02309BA
Thiết kế gắn tường tối ưu không gian: Vòi chậu TOTO TLP02309BA hướng tới sự gọn gàng và kín đáo, giúp giải phóng diện tích mặt chậu lavabo và tạo cảm giác thông thoáng cho phòng tắm.
Chất liệu đồng thau chống han gỉ: Được sản xuất từ đồng thau cao cấp, TOTO TLP02309BA có khả năng chống ăn mòn tuyệt vời, đảm bảo độ bền bỉ và tuổi thọ cực cao trong môi trường ẩm ướt.
Lớp mạ Niken-Crom 3 lớp sáng bóng: Bề mặt vòi chậu TOTO TLP02309BA luôn giữ được tông màu bạc sáng và dễ vệ sinh nhờ công nghệ mạ đa lớp tiên tiến từ Nhật Bản.
Dòng nước mạnh mẽ và êm ái: Với áp lực nước ổn định từ 0.05 - 1.0 MPa, vòi chậu TOTO TLP02309BA mang đến trải nghiệm thư giãn với luồng nước xả mạnh nhưng vẫn vô cùng êm dịu cho làn da.
Cần gạt nóng lạnh linh hoạt: Người dùng có thể dễ dàng tùy chỉnh nhiệt độ nước theo ý muốn nhờ phần cần gạt được thiết kế mượt mà và nhạy bén.
Van đĩa sứ chống rò rỉ nước: Vòi chậu TOTO TLP02309BA trang bị lõi van bằng sứ chống bám cặn, giúp khóa nước hoàn toàn an toàn và góp phần tiết kiệm tài nguyên nước hiệu quả.
Ghé thăm ngay hệ thống Showroom Hải Linh để trải nghiệm thực tế và sở hữu vòi chậu TOTO TLP02309BA chính hãng với mức giá ưu đãi cùng dịch vụ hậu mãi chuyên nghiệp!