
Sen tắm cây nhiệt độ TOTO TBW07403A thuộc dòng G của TOTO, nổi bật với thiết kế tròn tinh tế và bát sen kích thước 250mm. Sản phẩm tích hợp các công nghệ như Comfort Wave massage, Safety Thermo ổn định nhiệt và Heat Protect chống bỏng, mang lại trải nghiệm tắm an toàn và thoải mái.
Tìm hiểu về sen tắm cây TOTO TBW07403A
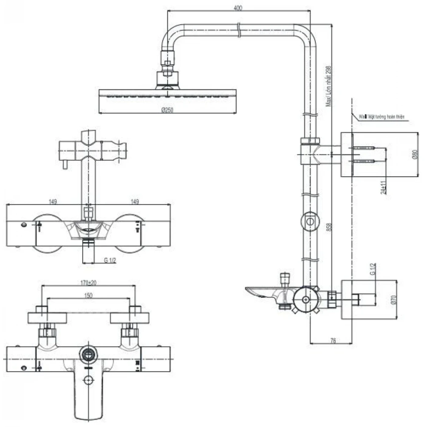
Bản vẽ kỹ thuật sen tắm cây TOTO TBW07403A
Công nghệ Safety Thermo (SMA): Hệ thống sử dụng lõi lò xo nhiệt độ SMA giúp phản ứng nhanh với sự thay đổi áp suất nước. Nhờ đó nhiệt độ nước luôn được duy trì ổn định trong suốt quá trình sử dụng. Công nghệ này giúp kiểm soát nhiệt độ hiệu quả hơn và hạn chế tình trạng nước nóng đột ngột.
Công nghệ Safety Thermo ổn định nhiệt độ
Công nghệ Heat Protect: Thân sen tắm cây TOTO TBW07403A được thiết kế với lớp nước lạnh bao phủ đường dẫn nước nóng bên trong. Nhờ vậy bề mặt sen không bị quá nóng khi sử dụng nước nóng. Điều này giúp người dùng an tâm hơn khi chạm vào sản phẩm trong lúc tắm.
Công nghệ Heat Protect giúp bề mặt củ sen không bị nóng lên quá mức
Chế độ massage Comfort Wave: Bát sen tắm cây TOTO TBW07403A tạo ra các tia nước dạng sóng với hạt nước kích thước lớn. Dòng nước phun nhịp nhàng mang lại lực massage mạnh mẽ nhưng vẫn êm ái. Nhờ đó giúp thư giãn cơ thể và vẫn đảm bảo tiết kiệm nước.
Công nghệ Comfort Wave massage thư giãn
Bát sen kim loại 250mm: Bát sen tắm cây TOTO TBW07403A có thiết kế tròn với đường kính lớn khoảng 250mm. Chất liệu kim loại cao cấp giúp tăng độ bền và khả năng chịu lực tốt. Kích thước rộng giúp dòng nước bao phủ cơ thể đều và tạo cảm giác tắm thoải mái hơn.
Vòi xả bồn tiện lợi: Sen tắm cây TOTO TBW07403A được tích hợp thêm vòi xả ngay dưới thân sen. Vòi xả giúp lấy nước nhanh để dùng cho chậu hoặc bồn tắm. Thiết kế này giúp tăng tính tiện dụng trong nhiều nhu cầu sinh hoạt.
Với thiết kế hiện đại cùng nhiều công nghệ tắm thư giãn, TOTO TBW07403A là lựa chọn phù hợp cho phòng tắm tiện nghi. Bộ sản phẩm gồm bát sen, thân cây và vòi xả xô, đáp ứng tốt nhu cầu sử dụng hằng ngày. Quý khách có thể tham khảo sản phẩm chính hãng tại showroom Hải Linh.