



Vòi xả bồn nóng lạnh TOTO TBG01306BA sở hữu thiết kế đặt sàn hiện đại và sang trọng, giúp làm bừng sáng không gian phòng tắm đẳng cấp của gia đình bạn. Được sản xuất từ đồng thau cao cấp với lớp mạ bền vững, sản phẩm là lựa chọn hoàn hảo cho những mẫu bồn tắm lập thể thời thượng.

Tìm hiểu vòi xả bồn nóng lạnh TOTO TBG01306BA

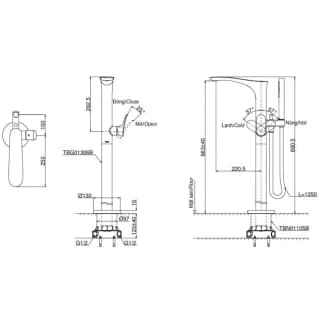
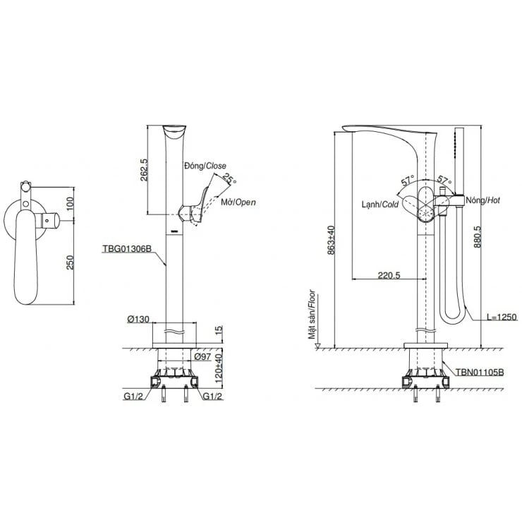
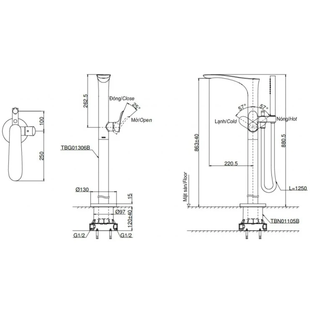
Bản vẽ kỹ thuật vòi xả bồn nóng lạnh TOTO TBG01306BA
Thiết kế hài hòa: Vòi xả bồn nóng lạnh TOTO TBG01306BA mang phong cách hiện đại, tạo nên sự đồng bộ và đẳng cấp khi kết hợp cùng các thiết bị vệ sinh thuộc dòng sản phẩm GO.
Độ bền vượt thời gian: Nhờ lớp mạ Nickel Chrome cao cấp, bề mặt vòi xả luôn giữ được vẻ sáng bóng, chống trầy xước và ăn mòn hiệu quả trong môi trường ẩm ướt.
Chất liệu an toàn và chắc chắn: Thân van của vòi xả bồn nóng lạnh TOTO TBG01306BA được làm hoàn toàn từ đồng thau nguyên khối, đảm bảo độ bền cơ học cao và an toàn cho sức khỏe nguồn nước.

Ưu điểm của vòi xả bồn nóng lạnh TOTO TBG01306BA
Vận hành chính xác: Vòi xả bồn nóng lạnh TOTO TBG01306BA trang bị van đĩa bằng sứ chống bám cặn, giúp việc điều chỉnh nước trơn tru và đảm bảo khả năng khóa nước hoàn toàn, không gây rò rỉ.
Tính ứng dụng cao: Với khả năng chịu áp lực nước tiêu chuẩn, TOTO TBG01306BA là giải pháp lý tưởng cho các dòng bồn tắm lập thể cao cấp.

Chất liệu an toàn và chắc chắn
Để sở hữu vòi xả bồn nóng lạnh TOTO TBG01306BA chính hãng với giá ưu đãi, hãy liên hệ hotline hoặc ghé thăm hệ thống Showroom Hải Linh ngay hôm nay.