



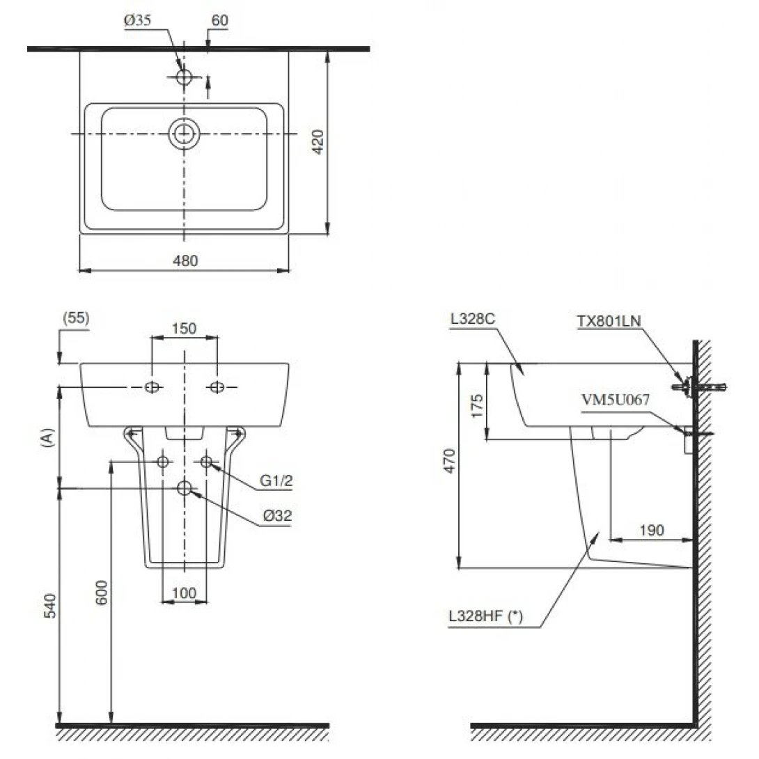
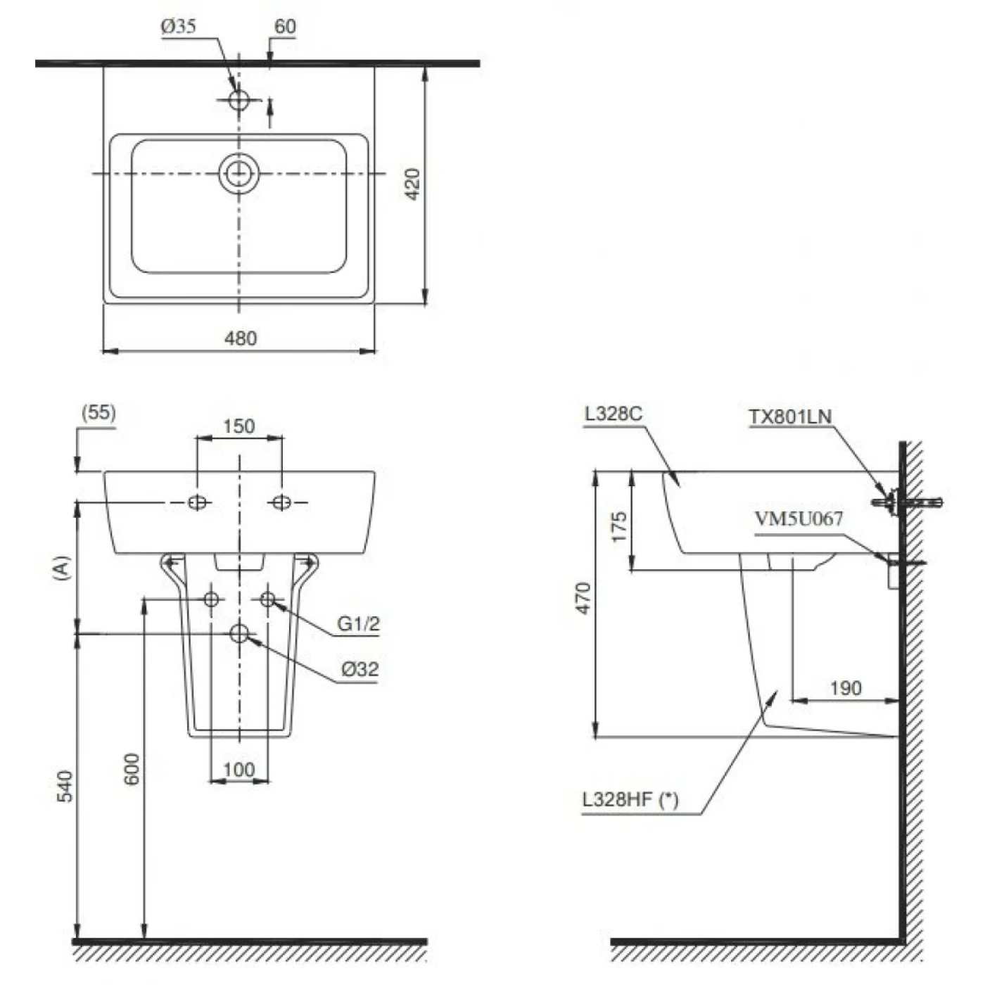
Vật liệu: Sứ vệ sinh
Đường kính lỗ bắt vòi: Ø35 (mm)
Bộ sản phẩm gồm có:
– Thân chậu: L328C
– Thân sứ: LW328CV
– Bộ cố định: TX801LN
– Chân chậu lửng: L328HF
– Thân sứ: LW328HFV
– Bộ cố định: VM5U067
Chậu rửa treo tường TOTO LHT328C là mẫu lavabo chân lửng cao cấp với thiết kế vành mỏng hiện đại, tạo cảm giác thanh thoát cho không gian phòng tắm. Lòng chậu vát đứng giúp tối ưu diện tích sử dụng mà vẫn đảm bảo sự tiện lợi trong sinh hoạt hằng ngày. Sản phẩm ứng dụng công nghệ men sứ độc quyền của TOTO, mang lại bề mặt bền đẹp và tính thẩm mỹ lâu dài.
Tìm hiểu về chậu rửa treo tường TOTO LHT328C
Sản phẩm không bao gồm vòi, bộ xả
Bản vẽ kỹ thuật chậu rửa treo tường TOTO LHT328C
Lớp men CEFIONTECT chống bám bẩn hiệu quả: Chậu rửa treo tường TOTO LHT328C được phủ lớp men CEFIONTECT giúp bề mặt luôn sáng bóng lâu dài. Công nghệ này hạn chế bám bẩn và cặn nước trong quá trình sử dụng hằng ngày. Nhờ đó TOTO LHT328C giảm nhu cầu dùng hóa chất tẩy rửa mạnh, giúp việc vệ sinh nhẹ nhàng hơn.
Lớp men CEFIONTECT chống bám bẩn hiệu quả
Lòng chậu thiết kế thông minh, hạn chế bắn nước: Thiết kế lòng chậu vát đứng tạo cảm giác rộng rãi và tăng không gian sử dụng. Nước được dẫn hướng tốt hơn, giúp hạn chế văng nước ra ngoài khi rửa tay. Chậu rửa treo tường TOTO LHT328C mang lại trải nghiệm sử dụng thoải mái và sạch sẽ.
Thiết kế treo tường tối ưu diện tích phòng tắm: TOTO LHT328C kết hợp kiểu treo tường cùng chân lửng giúp che gọn hệ thống xả bên dưới. Khoảng trống dưới chậu tạo cảm giác không gian thông thoáng và dễ vệ sinh sàn nhà. Chậu rửa treo tường TOTO LHT328C phù hợp cho phòng tắm hiện đại và diện tích vừa nhỏ.
Chậu rửa treo tường TOTO LHT328C thiết kế treo tường tối ưu diện tích phòng tắm
Chất liệu sứ bền bỉ, giữ vẻ trắng sáng lâu dài: Sứ vệ sinh TOTO có khả năng chống trầy xước tốt trong quá trình sử dụng. Bề mặt hạn chế ố vàng, duy trì tính thẩm mỹ theo thời gian dài. Nhờ độ bền cao, TOTO LHT328C đáp ứng tốt nhu cầu sử dụng ổn định cho gia đình và công trình.
Nhờ thiết kế tinh gọn và chất liệu sứ chất lượng cao, chậu rửa treo tường TOTO LHT328C phù hợp với nhiều phong cách phòng tắm hiện đại. Bề mặt men sáng mịn giúp hạn chế bám bẩn và hỗ trợ vệ sinh nhanh chóng trong quá trình sử dụng. Quý khách có thể tham khảo và trải nghiệm trực tiếp sản phẩm tại showroom Hải Linh để lựa chọn giải pháp phù hợp cho không gian của mình.