


Chậu rửa dương bàn Cotto C003807 FR sở hữu sắc hồng nude thanh lịch và thiết kế tròn hiện đại, là lựa chọn hoàn mỹ để tạo điểm nhấn tinh tế cho không gian phòng tắm. Sản phẩm không chỉ đảm bảo độ bền vượt trội mà còn nâng tầm tính thẩm mỹ, mang lại trải nghiệm sử dụng đẳng cấp cho gia chủ.

Chậu rửa dương bàn Cotto C003807 FR

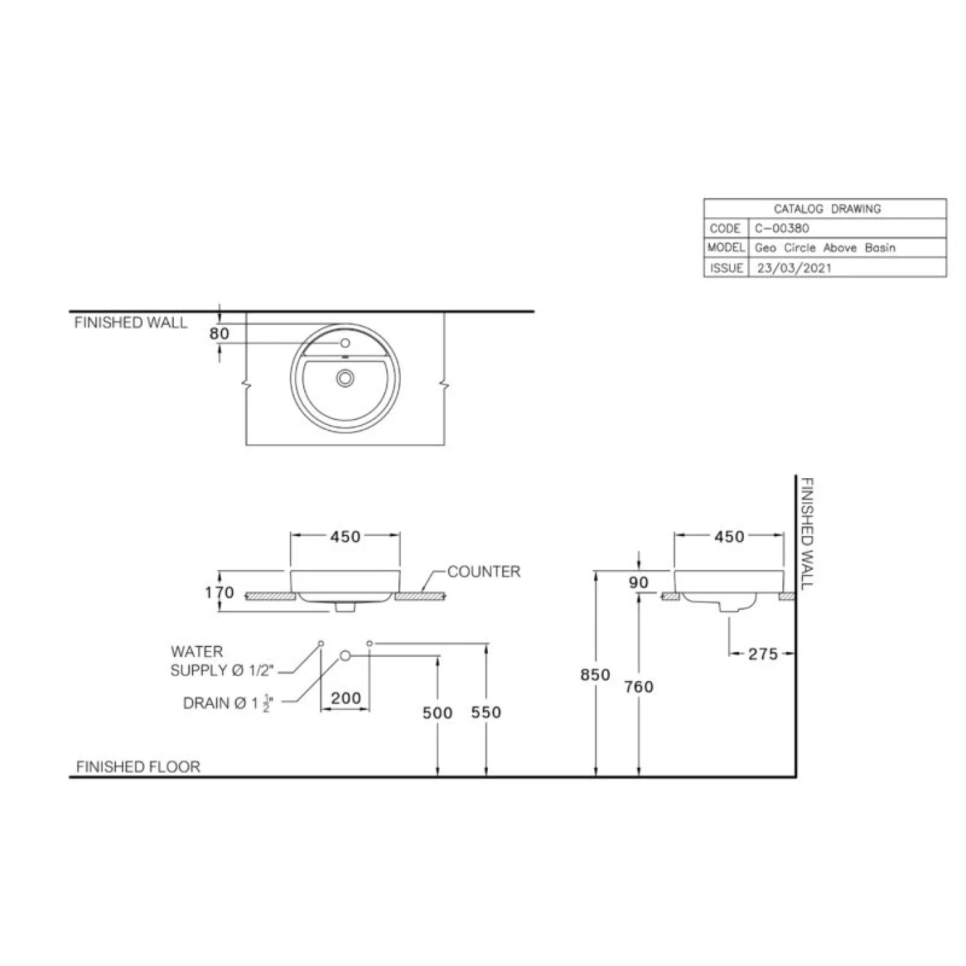
Bản vẽ kỹ thuật chậu rửa dương bàn Cotto C003807 FR
Thiết kế tinh tế và màu sắc xu hướng: Sản phẩm gây ấn tượng mạnh với đường nét tròn trịa, mềm mại, kết hợp cùng tone màu hồng pastel dịu nhẹ và bề mặt men bóng mịn. Thiết kế này tích hợp sẵn lỗ cắm vòi và lỗ thoát tràn có nắp kim loại, tạo nên vẻ đẹp đồng nhất cho các không gian kiến trúc Modern hay Minimalism.

Chất liệu sứ cao cấp và cấu tạo tối ưu: Được sản xuất từ cốt liệu sứ vệ sinh bền bỉ, chậu rửa Cotto C003807 FR có khả năng chịu lực tốt và chống bám bẩn nhờ lớp men xử lý ở nhiệt độ cao. Lòng chậu có độ sâu hợp lý giúp dòng nước lưu thông mượt mà, hạn chế tối đa việc văng nước lên bàn đá khi sử dụng hàng ngày.
Khả năng ứng dụng linh hoạt: Với kiểu dáng đặt bàn hiện đại, mẫu chậu này là điểm nhấn hoàn hảo cho phòng tắm tại các căn hộ chung cư, spa hoặc quán cà phê có phong cách trẻ trung. Sản phẩm đặc biệt nổi bật khi kết hợp cùng bàn đá trắng hoặc vân mây, mang lại cảm giác ấm cúng và thể hiện gu thẩm mỹ cá tính của gia chủ.
Với thiết kế sắc hồng nude độc đáo và chất lượng sứ bền bỉ, chậu rửa dương bàn Cotto C003807 FR là giải pháp hoàn hảo để nâng tầm phong cách sống hiện đại và khẳng định gu thẩm mỹ riêng biệt cho không gian thư giãn của bạn.