



Bồn tiểu nam treo tường TOTO UT557T là dòng sản phẩm vệ sinh cao cấp sở hữu thiết kế hiện đại, giúp tối ưu diện tích và nâng tầm thẩm mỹ cho mọi không gian phòng tắm. Với công nghệ men sứ độc quyền cùng hệ thống xả mạnh mẽ, sản phẩm đảm bảo sự sạch sẽ và tiện nghi vượt trội cho người sử dụng.

Bồn tiểu nam treo tường TOTO UT557T

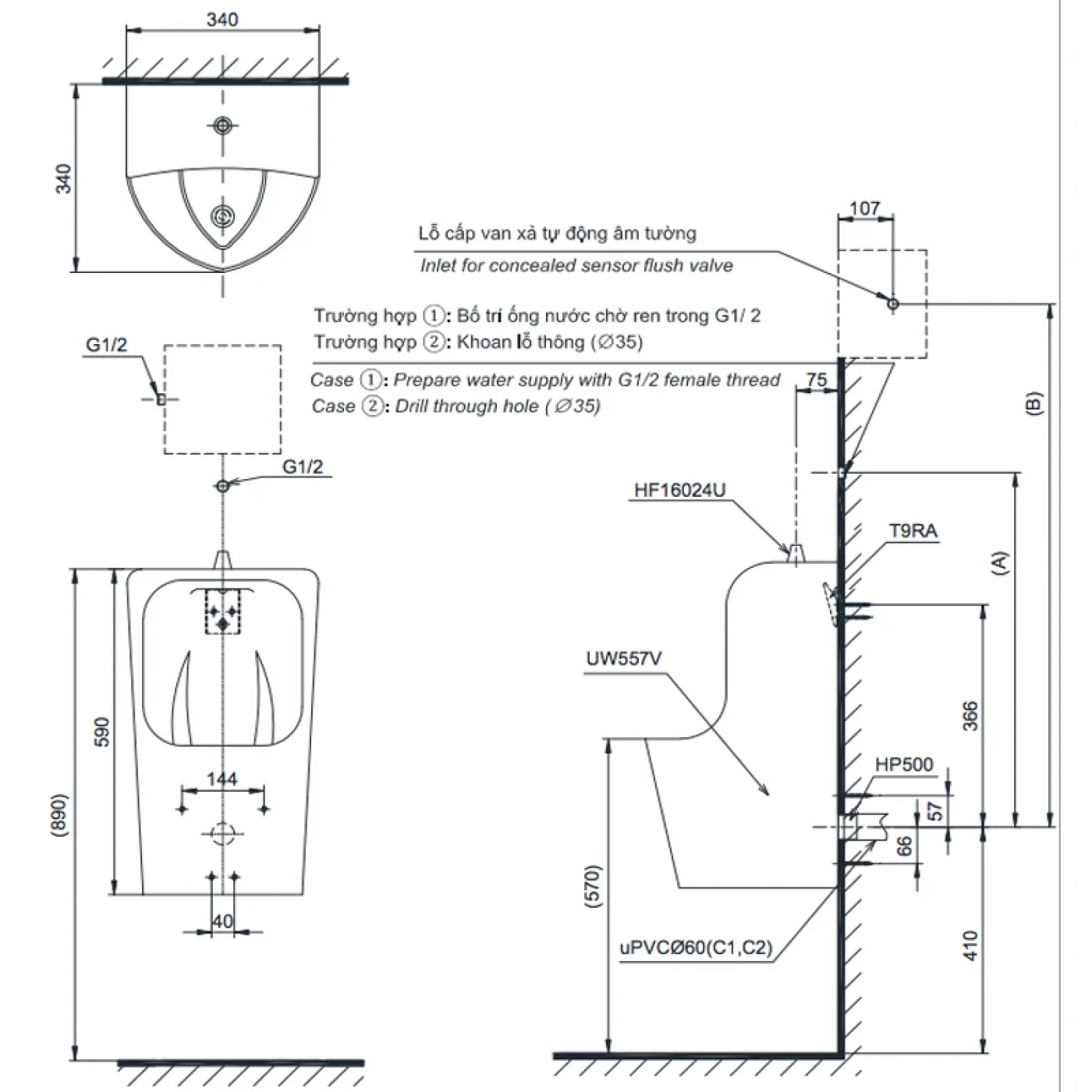
Bản vẽ kỹ thuật bồn tiểu nam treo tường TOTO UT557T
Thiết kế nhỏ gọn và riêng tư: Bồn tiểu nam treo tường TOTO UT557T sở hữu kích thước tinh tế 340 x 340 x 590mm, kết hợp cùng vách ngăn thông minh, giúp tạo không gian riêng tư tối đa.

Bồn tiểu nam treo tường TOTO UT557T thiết kế nhỏ gọn
Công nghệ men sứ CeFiONtect: Nhờ lớp men CeFiONtect siêu nhẵn mịn, bề mặt bồn tiểu nam treo tường TOTO UT557T có khả năng chống bám bẩn và ngăn ngừa vi khuẩn tích tụ hiệu quả, giữ cho sản phẩm luôn sáng bóng.
Hệ thống xả Siphon mạnh mẽ: Chế độ xả trải đều kết hợp hệ thống thoát thải Siphon tích hợp trên bồn tiểu nam giúp cuốn trôi mọi vết bẩn một cách nhanh chóng và triệt để.
Lắp đặt linh hoạt: Người dùng có thể dễ dàng kết hợp bồn tiểu nam treo tường TOTO UT557T với nhiều loại van xả khác nhau từ xả nhấn đến cảm ứng âm tường, mang lại sự đồng bộ cho công trình.
Hãy liên hệ ngay với hệ thống Showroom Hải Linh để được tư vấn chuyên sâu và sở hữu bồn tiểu nam treo tường TOTO UT557T chính hãng với mức giá ưu đãi nhất.