


Bồn tiểu nam Inax AU-468IR là dòng thiết bị vệ sinh cảm ứng hiện đại tích hợp công nghệ men sứ Aqua Ceramic giúp chống bám bẩn và vi khuẩn vượt trội. Với thiết kế treo tường nhỏ gọn và hệ thống xả đẩy tiên tiến, AU-468IR mang đến giải pháp vệ sinh thông minh, sang trọng và cực kỳ tiết kiệm nước.

Bồn tiểu nam Inax AU-468IR
Bồn tiểu nam INAX AU-468IR cải tiến tiết kiệm nước, chống bám bẩn đến từ thương hiệu thiết bị vệ sinh INAX

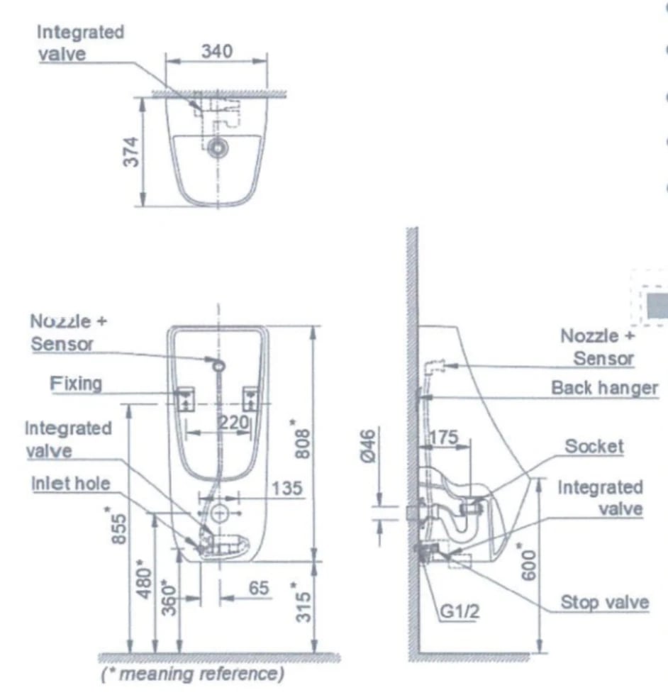
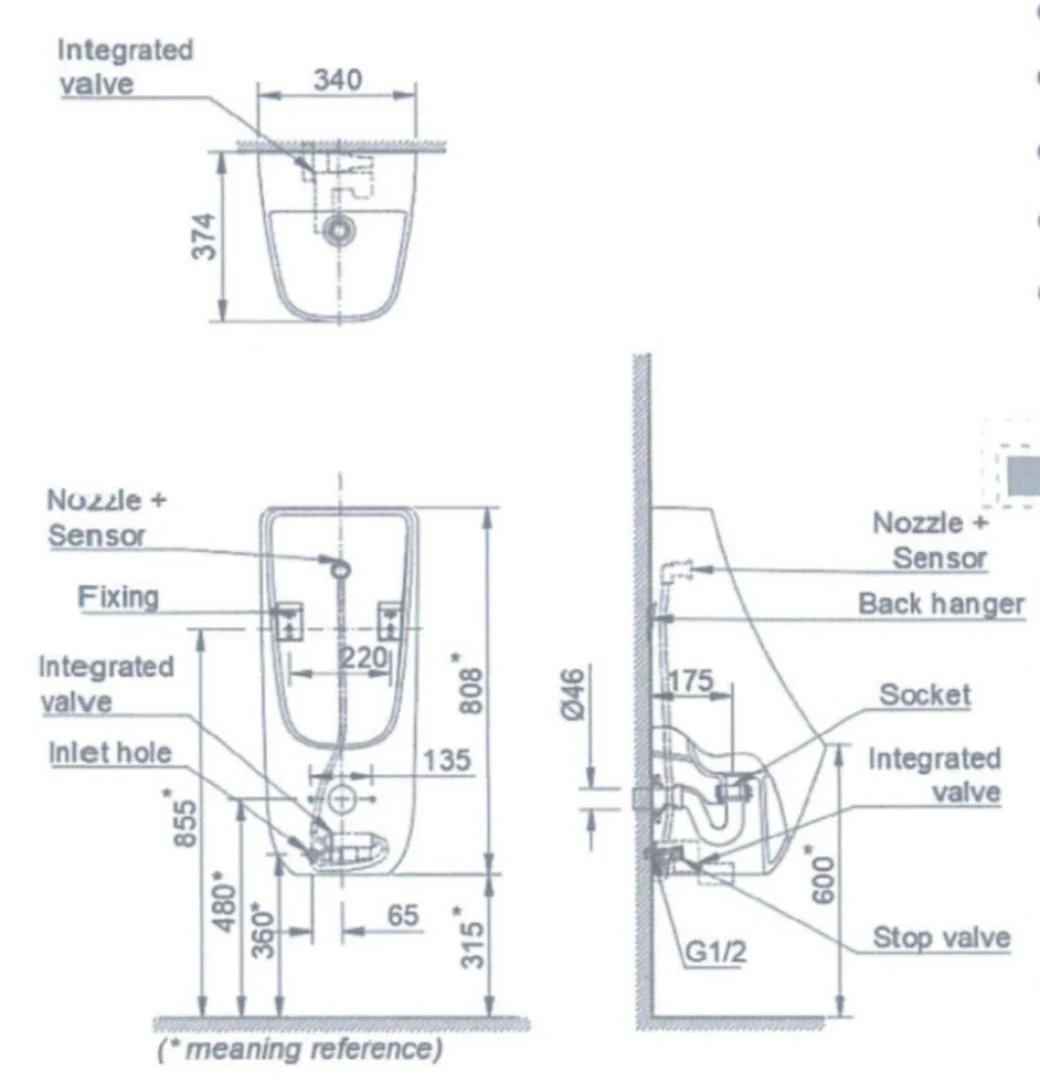
Bản vẽ kỹ thuật bồn tiểu nam Inax AU-468IR
Thiết kế tinh tế, gọn gàng: Bồn tiểu nam Inax AU-468IR sở hữu kích thước 340x374x808 mm cùng đường cấp nước âm, giúp tối ưu hóa không gian và đảm bảo tính thẩm mỹ cao cho phòng tắm.
Công nghệ men Aqua Ceramic: Nhờ lớp men sứ độc quyền, bồn tiểu nam Inax AU-468IR có khả năng ngăn chặn các vết ố vàng và giữ bề mặt trắng sáng bền bỉ suốt 100 năm.
Tiết kiệm nước tối ưu: Hệ thống xả đẩy thế hệ mới của bồn tiểu nam Inax AU-468IR vận hành mạnh mẽ nhưng chỉ tiêu tốn 0.5L nước cho mỗi lần xả, giúp giảm thiểu chi phí vận hành hiệu quả.

Ưu điểm nổi bật của bồn tiểu nam Inax AU-468IR
Cảm ứng thông minh và linh hoạt: AU-468IR tích hợp mắt cảm ứng nhạy bén, cho phép người dùng lựa chọn sử dụng bộ chuyển đổi điện A-468-ADP hoặc pin A-468-BAT tùy theo nhu cầu lắp đặt.
Lắp đặt ổn định: Sản phẩm bồn tiểu nam Inax AU-468IR đã bao gồm sẵn gioăng nối tường, đảm bảo sự kín khít và hoạt động bền bỉ dưới áp lực nước từ 0.1 đến 0.75MPa.
Quý khách hàng hãy liên hệ ngay Showroom Hải Linh để được tư vấn và sở hữu bồn tiểu nam Inax AU-468IR chính hãng với mức giá chiết khấu tốt nhất thị trường.