



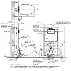
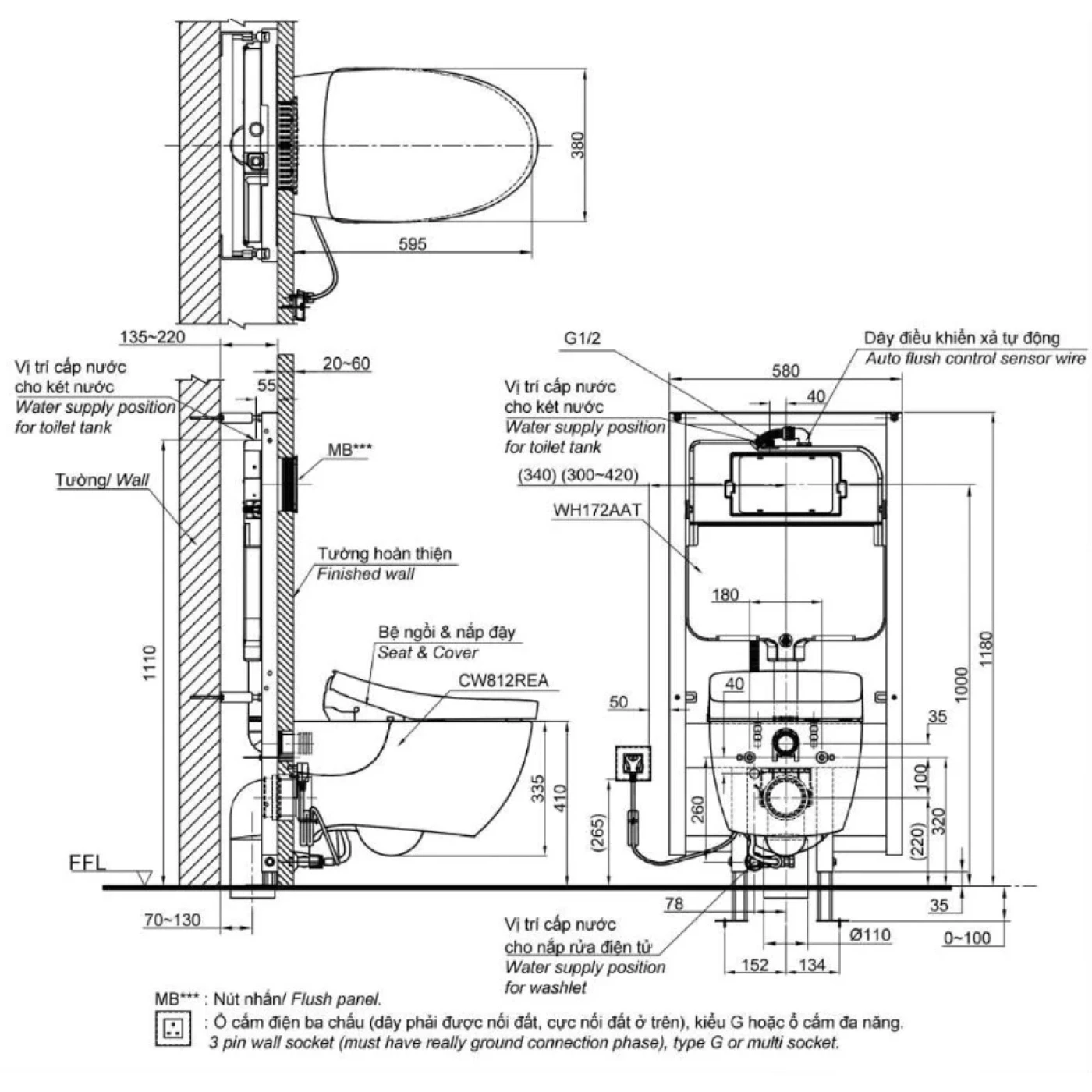
Kích thước: 595D x 380W x 335H mm
Màu sắc: Trắng
Hệ thống xả: Tornado Lượng
nước sử dụng: 4,5/3L
Hình dạng bồn cầu: Dài, Đầy đủ Chân bồn
Bồn cầu treo tường nắp WASHLET TOTO CW812REA/TCF4911EZ/WH172AT/TCA465/MB174P là bộ sản phẩm vệ sinh cao cấp tích hợp đầy đủ phụ kiện, sẵn sàng lắp đặt mà không cần mua thêm thiết bị đi kèm. Thiết kế âm tường thon gọn, đường nét tinh tế giúp tối ưu diện tích, đồng thời mang đến vẻ đẹp hiện đại và sang trọng cho nhiều phong cách phòng tắm.
Tìm hiểu về bồn cầu TOTO CW812REA/TCF4911EZ/WH172AT/TCA465/MB174P
Lưu ý: Không ghép nối bồn cầu này với van xả
Bản vẽ kỹ thuật bồn cầu TOTO CW812REA/TCF4911EZ/WH172AT/TCA465/MB174P
Thiết kế nắp rửa thông minh giấu dây hiện đại: Nắp bồn cầu TOTO TCF4911EZ sở hữu kiểu dáng tinh gọn, hệ thống dây điện được giấu kín, giúp tổng thể gọn gàng, tăng tính thẩm mỹ và phù hợp với nhiều không gian phòng tắm cao cấp.
Nắp rửa điện tử Washlet S7 TOTO TCF4911EZ hiện đại
Hệ thống xả xoáy Tornado mạnh mẽ: Công nghệ xả Tornado tạo dòng nước xoáy 360° làm sạch toàn diện lòng bàn cầu chỉ trong một lần xả, vận hành siêu êm và tối ưu lượng nước sử dụng, giúp tiết kiệm hiệu quả.
Xả xoáy Tornado TOTO mạnh mẽ
Công nghệ khử khuẩn EWATER+: Nước điện phân EWATER+ tự động phun tráng lòng cầu và vệ sinh vòi rửa, hỗ trợ tiêu diệt vi khuẩn, hạn chế bám bẩn và giữ thiết bị luôn sạch sẽ, an toàn cho sức khỏe.

Công nghệ khử khuẩn EWATER+ TOTO
Vòi rửa massage đa chức năng: Tích hợp nhiều chế độ rửa trước, sau, massage nhẹ nhàng với áp lực nước linh hoạt, mang lại cảm giác thư giãn, làm sạch êm ái và dễ chịu.
Công nghệ bọt khí AIR-IN: Các giọt nước được trộn bọt khí giúp tăng hiệu quả làm sạch nhưng vẫn mềm mại khi tiếp xúc, đồng thời giảm lượng nước tiêu thụ.

Công nghệ bọt khí AIR-IN TOTO
Tự động vệ sinh vòi rửa: Vòi phun tự làm sạch cả bên trong và bên ngoài trước và sau mỗi lần sử dụng, đảm bảo vệ sinh tối đa và hạn chế vi khuẩn tích tụ.
Tiện nghi chăm sóc toàn diện: Tích hợp chức năng sấy khô, khử mùi tự động và sưởi ấm bệ ngồi với nhiều mức điều chỉnh, mang đến trải nghiệm thoải mái, tiện nghi suốt bốn mùa.
Không chỉ gây ấn tượng bởi kiểu dáng thanh lịch, bồn cầu thông minh TOTO CW812REA/TCF4911EZ/WH172AT/TCA465/MB174P còn được trang bị nắp rửa điện tử thông minh với nhiều tiện ích tự động, nâng tầm trải nghiệm vệ sinh hằng ngày. Lựa chọn TOTO CW812REA chính là giải pháp hoàn hảo để kiến tạo không gian phòng tắm tiện nghi, sạch sẽ và đẳng cấp lâu dài.