



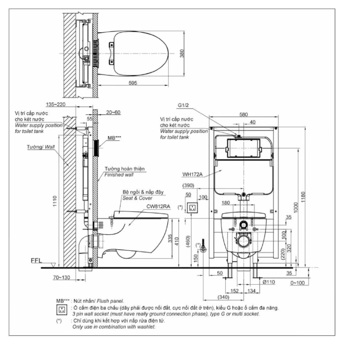
Kích thước: L595 x W380 x H335 (mm)
Màu sắc: Trắng
Hệ thống xả: Tornado
Lượng nước xả: 4.5/3L
Thiết kế: Thân dài, thân kín
Bồn cầu thông minh TOTO CW812RA/TCF47360GAA/WH172A/MB174P là bộ bồn cầu treo tường cao cấp sở hữu thiết kế hiện đại, tinh gọn, giúp tiết kiệm diện tích và nâng cao tính thẩm mỹ cho phòng tắm. Bồn cầu tích hợp nắp rửa điện tử WASHLET S7 cùng nhiều công nghệ vệ sinh tiên tiến của TOTO, mang đến trải nghiệm sạch sẽ, tiện nghi và thoải mái mỗi ngày.
Tìm hiểu về bồn cầu thông minh TOTO CW812RA/TCF47360GAA/WH172A/MB174P
Bản vẽ kỹ thuật bồn cầu thông minh TOTO CW812RA/TCF47360GAA/WH172A/MB174P
Thiết kế hiện đại, tinh tế: Bồn cầu TOTO CW812RA/TCF47360GAA/WH172A/MB174P sở hữu kiểu dáng thanh lịch, đường nét gọn gàng cùng thiết kế giấu dây thông minh, giúp tổng thể không gian phòng tắm trở nên sang trọng và tối ưu tính thẩm mỹ.
Hệ thống xả xoáy Tornado mạnh mẽ: Công nghệ xả 360° tạo dòng nước xoáy cuốn trôi vết bẩn nhanh chóng, vận hành êm ái và tiết kiệm nước tối đa, mang lại hiệu quả làm sạch vượt trội sau mỗi lần sử dụng.
Xả xoáy Tornado TOTO mạnh mẽ
Nắp đóng và mở tự động tiện lợi: Tích hợp cảm biến thông minh, nắp bồn cầu tự động đóng mở khi người dùng đến gần hoặc rời đi, hạn chế tiếp xúc trực tiếp, nâng cao vệ sinh và sự tiện nghi.
Công nghệ khử khuẩn EWATER+: Nước điện phân được phun tráng lòng bồn cầu, vệ sinh vòi rửa và vành dưới bệ ngồi, giúp tiêu diệt vi khuẩn hiệu quả, giữ bề mặt luôn sạch sẽ và giảm mùi khó chịu.
Công nghệ khử khuẩn EWATER+ TOTO
Vòi rửa massage đa chức năng: Trang bị chế độ rửa trước, rửa sau và massage linh hoạt, kết hợp công nghệ bọt khí mang lại cảm giác rửa nhẹ nhàng, êm ái, phù hợp cho mọi thành viên trong gia đình.
Tự vệ sinh vòi rửa: Vòi phun tự động làm sạch trước và sau khi dùng, đảm bảo an toàn, hạn chế vi khuẩn tích tụ.
Tiện nghi cao cấp tích hợp: Hệ thống phun sương chống bám bẩn, sấy khô nhanh, khử mùi tự động và sưởi ấm bệ ngồi giúp trải nghiệm sử dụng bồn cầu TOTO CW812RA/TCF47360GAA/WH172A/MB174P luôn thoải mái trong mọi điều kiện thời tiết.
Giải pháp vệ sinh toàn diện: Với sự kết hợp giữa công nghệ hiện đại và thiết kế thông minh, bồn cầu TOTO CW812RA/TCF47360GAA/WH172A/MB174P mang đến không gian phòng tắm sạch khuẩn, tiện nghi và đẳng cấp cho gia đình hiện đại.
Với khả năng làm sạch hiệu quả, vận hành êm ái và độ bền vượt trội, bồn cầu TOTO CW812RA/TCF47360GAA/WH172A/MB174P là lựa chọn lý tưởng cho không gian sống hiện đại và cao cấp. Quý khách có thể ghé showroom Hải Linh để trải nghiệm bồn cầu chính hãng và nhận tư vấn, báo giá tốt nhất.