



Kích thước: 595D x 380W x 335H mm
Màu sắc: Trắng
Hệ thống xả: Tornado
Lượng nước xả: 4.5/3L
Thiết kế: Thân dài, thân kín, giấu dây
Bồn cầu thông minh TOTO CW822REA/TCF23460AAA/WH172AT/TCA465/MB170P là mẫu bồn cầu treo tường cao cấp với thiết kế giấu dây tinh gọn, tích hợp nắp rửa điện tử WASHLET C2 hiện đại. Bồn cầu mang đến sự tiện nghi và sạch sẽ vượt trội nhờ các công nghệ vệ sinh tiên tiến của TOTO.
Tìm hiểu về bồn cầu TOTO CW822REA/TCF23460AAA/WH172AT/TCA465/MB170P
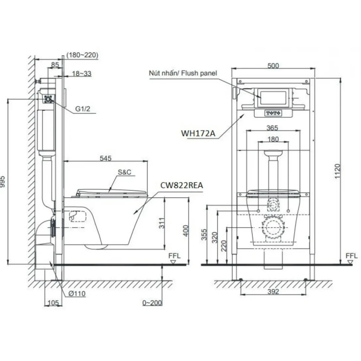
Bản vẽ kỹ thuật bồn cầu TOTO CW822REA/TCF23460AAA/WH172AT/TCA465/MB170P
Thiết kế thân cầu kết hợp nắp điện tử giấu dây hiện đại: Tổng thể liền mạch, tinh gọn giúp bồn cầu TOTO CW822REA/TCF23460AAA/WH172AT/TCA465/MB170P nâng tầm thẩm mỹ không gian phòng tắm, hạn chế bám bụi và thuận tiện lau chùi hằng ngày.
Thiết kế thân cầu kết hợp nắp điện tử giấu dây hiện đại
Hệ thống xả xoáy Tornado siêu mạnh, vận hành êm ái, tiết kiệm nước: Dòng nước xoáy 360° làm sạch nhanh chóng mọi vết bẩn chỉ trong một lần xả, giảm tiếng ồn hiệu quả và tối ưu lượng nước sử dụng, mang lại trải nghiệm sử dụng bền bỉ cho bồn cầu TOTO CW822REA/TCF23460AAA/WH172AT/TCA465/MB170P.
Xả xoáy Tornado TOTO mạnh mẽ
Công nghệ nước điện phân khử khuẩn EWATER+ (vệ sinh vòi rửa): Tự động làm sạch vòi phun bằng nước điện phân sau mỗi lần sử dụng, ngăn ngừa vi khuẩn, đảm bảo an toàn sức khỏe và duy trì độ bền thiết bị.
Công nghệ nước điện phân EWATER+ khử khuẩn
Vòi rửa massage đa chức năng, linh hoạt: Tích hợp nhiều chế độ rửa trước, rửa sau và massage, điều chỉnh áp lực và vị trí phun, mang đến cảm giác nhẹ nhàng, sạch sâu, thân thiện với làn da nhạy cảm.
Tự vệ sinh vòi rửa trước và sau khi dùng: Cơ chế làm sạch kép giúp vòi phun luôn sạch sẽ, nâng cao tiêu chuẩn vệ sinh tối đa.
Sấy khô, khử mùi, sưởi ấm bệ ngồi: Hệ thống tiện nghi thông minh mang lại sự thoải mái quanh năm, khử mùi hiệu quả và giữ ấm dễ chịu, hoàn thiện trải nghiệm cao cấp mà bồn cầu TOTO CW822REA/TCF23460AAA/WH172AT/TCA465/MB170P mang lại cho người dùng.
Vận hành êm ái, tiết kiệm nước và tích hợp nhiều tính năng thông minh, bồn cầu TOTO CW822REA/TCF23460AAA/WH172AT/TCA465/MB170P là lựa chọn lý tưởng cho phòng tắm sang trọng. Quý khách có thể tham khảo và mua chính hãng tại showroom Hải Linh để được tư vấn và nhận giá tốt nhất.