


Hệ thống xả: Tornado
Lượng xả: 4.5/3 L
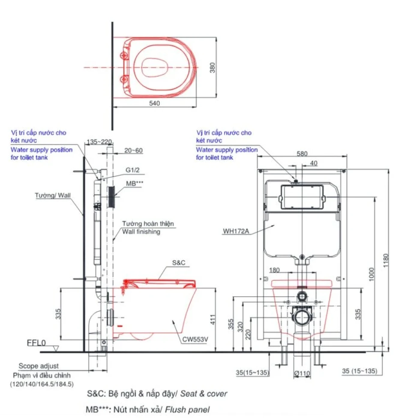
Tâm xả: 220 mm (Thoát ngang)
Kiểu dáng: Thân chữ D, thân kín
Trong xu hướng thiết kế phòng tắm hiện đại, các dòng bồn cầu treo tường thông minh ngày càng được ưa chuộng nhờ khả năng tối ưu diện tích và nâng cao trải nghiệm vệ sinh cá nhân. Bồn cầu thông minh treo tường TOTO CW553/TCF33320GAA/WH172A/MB170P là lựa chọn nổi bật đến từ thương hiệu TOTO, kết hợp kiểu dáng tinh gọn cùng loạt công nghệ chăm sóc sức khỏe tiên tiến, mang đến không gian sạch sẽ, tiện nghi và đẳng cấp cho mọi công trình.
Bồn cầu thông minh treo tường TOTO CW553/TCF33320GAA/WH172A/MB170P
Bản vẽ kỹ thuật bồn cầu thông minh TOTO CW553/TCF33320GAA/WH172A/MB170P
Thiết kế thân chữ D, thân kín hiện đại: Bồn cầu thông minh TOTO CW553/TCF33320GAA/WH172A/MB170P sở hữu kiểu dáng chữ D gọn gàng, tối giản nhưng sang trọng, phù hợp với nhiều phong cách phòng tắm cao cấp. Thiết kế thân kín giúp hạn chế bám bụi, dễ lau chùi và giữ không gian luôn sạch sẽ.
Men sứ CeFiONtect chống bám bẩn vượt trội: Bề mặt sứ được phủ lớp men CeFiONtect siêu nhẵn, ngăn chặn vi khuẩn, mảng bám và chất thải bám dính. Nhờ đó TOTO CW553/TCF33320GAA/WH172A/MB170P luôn duy trì độ trắng sáng lâu dài, giảm công sức vệ sinh hằng ngày.
Men sứ CeFiONtect chống bám bẩn TOTO
Hệ thống xả xoáy Tornado mạnh mẽ: Công nghệ Tornado tạo dòng nước xoáy 360° làm sạch toàn diện mọi vị trí trong lòng cầu chỉ với một lần xả. Cơ chế vận hành êm và tối ưu lượng nước sử dụng, giúp tiết kiệm chi phí và thân thiện môi trường.
Xả xoáy Tornado TOTO mạnh mẽ
Thiết kế vành kín dễ vệ sinh: Cấu trúc vành kín không khe hở hạn chế tích tụ vi khuẩn và cặn bẩn. Việc lau chùi nhanh chóng hơn, đảm bảo bồn cầu luôn sạch sẽ và hợp vệ sinh.
Khử trùng vòi rửa bằng EWATER+: Hệ thống EWATER+ tự động tạo nước điện phân để làm sạch và khử khuẩn vòi phun trước – sau mỗi lần sử dụng. Tính năng này giúp tăng cường độ an toàn và bảo vệ sức khỏe người dùng.
Phun sương lòng cầu chống bám dính: Công nghệ PREMIST phun sương làm ướt bề mặt lòng cầu trước khi sử dụng, giúp chất thải khó bám và dễ dàng được cuốn trôi khi xả.
Công nghệ phun sương PREMIST TOTO
Vòi rửa massage đa chức năng: Tích hợp nhiều chế độ rửa trước, rửa sau, massage và điều chỉnh áp lực nước ấm linh hoạt. Mang lại trải nghiệm vệ sinh sạch sâu, thư giãn và tiện nghi như spa tại nhà.
Sấy khô, khử mùi và sưởi ấm bệ ngồi: Bồn cầu thông minh TOTO CW553/TCF33320GAA/WH172A/MB170P còn trang bị sấy khô bằng khí ấm, khử mùi tự động và sưởi ấm bệ ngồi, mang lại sự thoải mái tối đa trong mọi điều kiện thời tiết.
Với sự hòa quyện giữa thiết kế thẩm mỹ, hiệu năng xả mạnh mẽ và các tính năng tự động hóa thông minh, TOTO CW553/TCF33320GAA/WH172A/MB170P không chỉ đáp ứng nhu cầu vệ sinh hằng ngày mà còn góp phần nâng tầm chất lượng sống. Đây là giải pháp hoàn hảo cho gia đình, khách sạn hay căn hộ cao cấp đang tìm kiếm một thiết bị phòng tắm bền bỉ, tiết kiệm nước và tiện nghi lâu dài.