



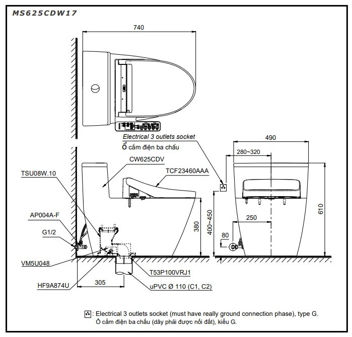
Kích thước: L740 x W490 x H610 (mm)
Màu sắc: Trắng
Hệ thống xả: Tornado
Lượng nước xả: 4.5/3L
Bồn cầu điện tử TOTO MS625CDW17 sở hữu thiết kế một khối giấu dây tinh tế, mang lại vẻ đẹp sang trọng và đẳng cấp cho không gian phòng tắm hiện đại. Với chất liệu sứ trắng sáng bóng, dễ vệ sinh và bảng điều khiển bên hông tiện lợi, sản phẩm là giải pháp thông minh giúp nâng tầm trải nghiệm sống và đảm bảo sự tiện nghi tối ưu.
Tìm hiểu về bồn cầu điện tử TOTO MS625CDW17
Lưu ý: Bao gồm bích nối sàn, van dừng
Bản vẽ kỹ thuật bồn cầu điện tử TOTO MS625CDW17
Thiết kế bề thế và hiện đại cho không gian rộng: Bồn cầu điện tử TOTO MS625CDW17 sở hữu kiểu dáng bề thế và sang trọng, là lựa chọn hoàn hảo để tạo điểm nhấn cho không gian phòng tắm lớn. Thiết kế này không chỉ nâng cao tính thẩm mỹ hiện đại mà còn mang lại cảm giác ngồi thoải mái và vững chãi cho người sử dụng.
Công nghệ men sứ CEFIONTECT kháng khuẩn vượt trội: Toàn bộ bề mặt bồn cầu TOTO MS625CDW17 được tráng lớp men sứ CEFIONTECT siêu mịn, giúp ngăn chặn hiệu quả sự bám dính của vi khuẩn và nấm mốc. Nhờ đặc tính ưa nước ưu việt, các chất thải sẽ bị cuốn trôi nhanh chóng theo dòng nước, giúp bồn cầu luôn giữ được vẻ sáng bóng và sạch sẽ mà không tốn nhiều công sức vệ sinh.
Ưu điểm nổi bật của bồn cầu điện tử TOTO MS625CDW17
Chế độ phun sương PREMIST thông minh: Bồn cầu điện tử TOTO MS625CDW17 tích hợp công nghệ phun sương PREMIST, tự động xịt nước lên bề mặt lòng cầu trước và sau khi sử dụng để tạo màng ẩm bảo vệ. Tính năng này giúp ngăn chặn chất bẩn bám dính hiệu quả, hỗ trợ việc cuốn trôi mọi tạp chất một cách nhanh chóng và nhẹ nhàng hơn.
Hệ thống xả xoáy TORNADO siêu mạnh: Sở hữu công nghệ xả TORNADO tiên tiến, bồn cầu TOTO MS625CDW17 tạo ra dòng nước xoáy mạnh mẽ giúp làm sạch mọi ngóc ngách và loại bỏ các vết ố vàng. Khả năng xả rửa vượt trội này không chỉ đảm bảo vệ sinh tối ưu mà còn giúp người dùng hạn chế tối đa việc sử dụng các chất tẩy rửa hóa học gây hại.
Các tính năng tự động hiện đại và tiện nghi: Bồn cầu điện tử TOTO MS625CDW17 mang lại trải nghiệm đẳng cấp nhờ vòi rửa massage đa chức năng và hệ thống tự động làm sạch vòi bằng nước điện phân EWATER+. Ngoài ra, sản phẩm còn trang bị các chế độ khử mùi và sấy khô bằng khí ấm, giúp không gian phòng tắm luôn khô thoáng, sạch sẽ và thơm tho.
Để sở hữu bồn cầu điện tử TOTO MS625CDW17 chính hãng với mức giá ưu đãi và dịch vụ lắp đặt chuyên nghiệp, quý khách hãy liên hệ hotline hoặc đến ngay showroom Hải Linh gần nhất!