


Bồn cầu 2 khối COTTO C135137 thuộc dòng Hercules Curve là thiết bị vệ sinh cao cấp, được thiết kế nhằm nâng cao sự tiện nghi và đảm bảo vệ sinh cho không gian phòng tắm hiện đại. Bồn cầu tích hợp công nghệ xả cảm ứng không chạm, cho phép kích hoạt xả nước bằng thao tác đưa tay qua mắt cảm biến, giúp hạn chế tiếp xúc và tăng tính an toàn khi sử dụng.

Bồn cầu xả không chạm Cotto C135137

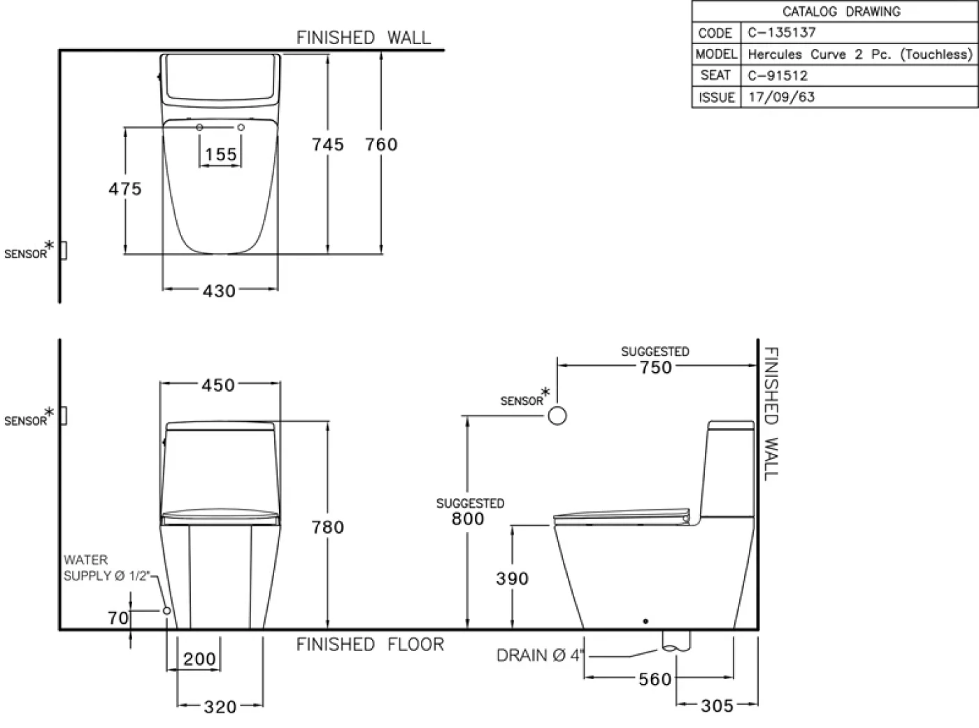
Bản vẽ kỹ thuật Bồn cầu Cotto C135137
Xả cảm ứng Touchless tiện lợi: Công nghệ cảm biến hồng ngoại trên bồn cầu xả không chạm Cotto C135137 cho phép xả nước chỉ bằng thao tác vẫy tay. Người dùng không cần chạm trực tiếp vào nút nhấn, giúp hạn chế tiếp xúc vi khuẩn khi sử dụng. Nhờ đó, Cotto C135137 mang lại trải nghiệm vệ sinh hiện đại và phù hợp cho không gian sống tiện nghi.

Xả không chạm Touchless hiện đại
Hệ thống xả V-Silent êm ái: Công nghệ xả V-Silent tạo lực xả mạnh giúp cuốn trôi chất bẩn nhanh chóng và sạch hiệu quả. Hệ thống vận hành êm, giảm tiếng ồn trong quá trình sử dụng hằng ngày. Tính năng này giúp bồn cầu xả không chạm Cotto C135137 vừa đảm bảo hiệu suất làm sạch vừa giữ không gian yên tĩnh.

Bồn cầu Cotto C135137 chất lượng cao
Công nghệ men sứ Ultra Clean+ kháng khuẩn: Lớp men Ultra Clean+ giúp ức chế đến 99% vi khuẩn trong vòng 24 giờ trên bề mặt sứ. Bề mặt siêu mịn hạn chế bám bẩn và giúp việc vệ sinh trở nên nhanh chóng hơn. Nhờ công nghệ này, Cotto C135137 luôn giữ được độ sáng bóng và sạch sẽ lâu dài.

Công nghệ kháng khuẩn Ultra Clean+ kháng khuẩn
Nắp đóng êm Soft Close bền bỉ: Nắp bồn cầu được thiết kế đóng êm giúp hạ xuống nhẹ nhàng, tránh va đập mạnh. Tính năng này hạn chế tiếng động lớn và bảo vệ bề mặt sứ khỏi nứt vỡ. Nhờ vậy, bồn cầu xả không chạm Cotto C135137 phù hợp với không gian sinh hoạt cần sự yên tĩnh.
Nguồn điện linh hoạt & xả dự phòng: Hệ thống cảm biến có thể hoạt động bằng pin AA hoặc kết nối nguồn điện 220V linh hoạt khi lắp đặt. Bồn cầu vẫn tích hợp nút xả thủ công để sử dụng khi hết pin hoặc mất điện. Điều này giúp Cotto C135137 duy trì hoạt động ổn định và không làm gián đoạn quá trình sử dụng.

Bồn cầu Cotto C135137 thiết kế đẹp
Với thiết kế thân dài thoải mái, nắp đóng êm vận hành nhẹ nhàng cùng công nghệ men kháng khuẩn Hygienic hỗ trợ giữ bề mặt luôn sạch sẽ, bồn cầu 2 khối COTTO C135137 mang lại trải nghiệm sử dụng tiện lợi và phù hợp cho nhu cầu sinh hoạt hằng ngày.