

Bồn cầu 2 khối COTTO C167507(CV6) kết hợp nắp rửa điện tử mang đến giải pháp vệ sinh tiện nghi, phù hợp với xu hướng phòng tắm hiện đại. COTTO C167507(CV6) được trang bị hệ thống xả Triplex tiết kiệm nước cùng nắp thông minh C9206 (AC 220V) tích hợp nhiều tính năng tự động, giúp nâng cao trải nghiệm sử dụng sạch sẽ và thoải mái mỗi ngày.

Bồn cầu thông minh Cotto C167507(CV6)

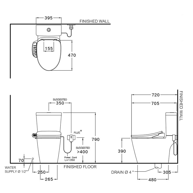
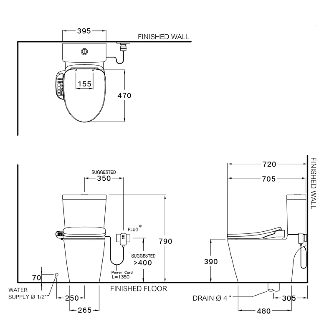
Bản vẽ kỹ thuật Bồn cầu thông minh Cotto C167507(CV6)
Công nghệ kháng khuẩn Ultra Clean+: Lớp men sứ Ultra Clean+ trên bồn cầu nắp điện tử Cotto C167507(CV6) giúp ức chế đến 99% vi khuẩn trong vòng 24 giờ. Bề mặt sứ luôn giữ độ bóng mịn, hạn chế bám bẩn trong quá trình sử dụng. Nhờ đó, Cotto C167507(CV6) giúp việc vệ sinh nhẹ nhàng và duy trì không gian phòng tắm sạch sẽ lâu dài.

Công nghệ kháng khuẩn Ultra Clean+ kháng khuẩn
Hệ thống xả Triplex Flush tiết kiệm nước: Công nghệ xả Triplex Flush tạo dòng xoáy mạnh giúp cuốn trôi chất bẩn nhanh và đồng đều. Thiết kế lòng bầu tối ưu giúp làm sạch hiệu quả chỉ với lượng nước từ 2.5L đến 4.5L. Tính năng này giúp bồn cầu nắp điện tử Cotto C167507(CV6) vận hành êm ái và tiết kiệm nước cho gia đình.
Vòi rửa thông minh diệt khuẩn UV: Vòi rửa thép không gỉ có khả năng tự khử trùng bằng tia UV sau mỗi lần sử dụng, tăng độ an toàn vệ sinh. Người dùng dễ dàng điều chỉnh vị trí vòi và cường độ phun phù hợp nhu cầu cá nhân. Nhờ vậy, Cotto C167507(CV6) mang lại trải nghiệm làm sạch tiện nghi và sạch sâu hơn.
Tiện ích nắp rửa C9206 hiện đại: Nắp rửa tích hợp sưởi ấm bệ ngồi giúp tạo cảm giác dễ chịu khi sử dụng vào thời tiết lạnh. Hệ thống sấy khô bằng khí ấm hỗ trợ làm khô nhanh sau khi rửa, tăng sự tiện lợi hằng ngày. Ngoài ra, bồn cầu nắp điện tử Cotto C167507(CV6) còn có đèn LED ban đêm và nắp đóng êm giúp sử dụng nhẹ nhàng, hạn chế tiếng ồn.
Nhờ thiết kế thân dài tạo cảm giác dễ chịu khi sử dụng, hệ thống xả hiệu quả cùng các tính năng rửa, sấy khô và kháng khuẩn tiện lợi, bồn cầu 2 khối COTTO C167507(CV6) đáp ứng tốt nhu cầu vệ sinh hiện đại và tiết kiệm nước cho gia đình. Quý khách có thể tham khảo và trải nghiệm trực tiếp sản phẩm tại showroom Hải Linh để được tư vấn chi tiết và lựa chọn phù hợp.