


Chất liệu: Đồng mạ Ni-Cr
Áp lực nước: 0.05 ~ 0.75 MPa
Chế độ: Vòi nóng lạnh
Vòi rửa bát TOTO TKS05304J là dòng vòi bếp nóng lạnh Nhật Bản cao cấp, mang đến sự tiện nghi vượt trội và phong cách tối giản sang trọng cho không gian nội trợ hiện đại. Với chất lượng bền bỉ và tính năng thông minh, sản phẩm là giải pháp hoàn hảo giúp công việc bếp núc trở nên dễ dàng và tiết kiệm nước hiệu quả.
Tìm hiểu vòi rửa bát TOTO TKS05304J
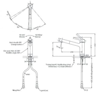
Bản vẽ kỹ thuật vòi rửa bát TOTO TKS05304J
Thiết kế tối giản và tinh tế: Vòi rửa bát TOTO TKS05304J sở hữu vẻ ngoài hiện đại với các đường nét thanh lịch, dễ dàng hòa hợp và nâng tầm thẩm mỹ cho mọi kiến trúc nhà bếp.
Hai chế độ phun nước linh hoạt: Người dùng có thể dễ dàng điều chỉnh chế độ xả thẳng hoặc xả sen ngay tại đầu vòi rửa bát TOTO TKS05304J, đáp ứng đa dạng nhu cầu từ rửa rau củ đến vệ sinh chén bát sạch sẽ.
Lớp mạ Crom-Niken bền vững: Nhờ lớp mạ cao cấp chống ăn mòn và trầy xước, TOTO TKS05304J luôn giữ được độ sáng bóng hoàn hảo và vẻ đẹp như mới dù sau thời gian dài sử dụng.
Ưu điểm của vòi rửa bát TOTO TKS05304J
Khả năng xoay 180 độ tiện lợi: Thiết kế thân vòi có thể xoay chuyển linh hoạt giúp mở rộng phạm vi làm sạch, đặc biệt phù hợp cho các chậu rửa có diện tích lớn.
Chất liệu đồng thau và lọc chống văng: Được sản xuất từ đồng thau nguyên khối, kết hợp đầu lọc thông minh, vòi rửa bát TOTO TKS05304J đảm bảo dòng chảy êm ái, mạnh mẽ mà không gây văng bắn nước ra ngoài.
Vận hành ổn định dưới áp lực cao: Với thông số áp lực nước từ 0.05MPa đến 0.75MPa, vòi rửa bát TOTO TKS05304J luôn duy trì hiệu suất xả nước ổn định, phục vụ tốt mọi nhu cầu nội trợ hàng ngày.
Hãy liên hệ ngay với hệ thống Showroom Hải Linh để sở hữu vòi rửa bát TOTO TKS05304J chính hãng với mức giá ưu đãi và chính sách bảo hành uy tín nhất thị trường.