



Sen tắm nhiệt độ TOTO TBG07302VA/TBW01035V là lựa chọn lý tưởng cho không gian phòng tắm hiện đại nhờ thiết kế tinh tế và khả năng vận hành ổn định. Sản phẩm mang đến trải nghiệm tắm thoải mái với công nghệ điều chỉnh nước chính xác và nhiều chế độ phun tiện ích.
Tìm hiểu sen tắm nhiệt độ TOTO TBG07302VA/TBW01035V
Bộ vòi sen tắm kết hợp giữa củ sen tắm & tay sen:
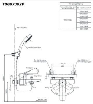
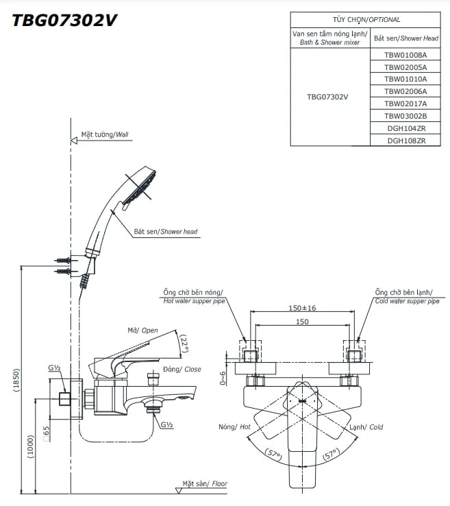
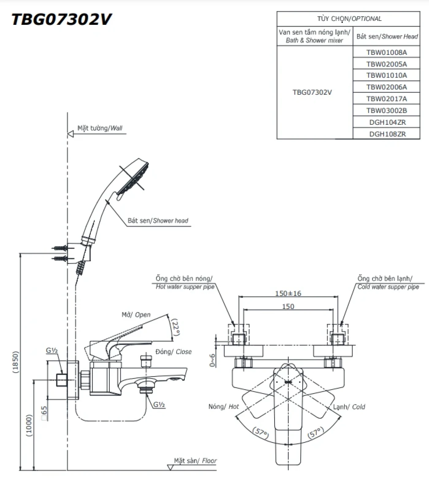
Bản vẽ kỹ thuật sen tắm nhiệt độ TOTO TBG07302VA/TBW01035V
Thiết kế sang trọng, hiện đại: Sen tắm nhiệt độ TOTO TBG07302VA/TBW01035V sở hữu kiểu dáng tròn tinh tế thuộc bộ sưu tập GE, giúp không gian phòng tắm trở nên cao cấp và hài hòa hơn.
Chất liệu bền bỉ, chống ăn mòn tốt: Củ sen của sen tắm TOTO TBG07302VA/TBW01035V được làm từ đồng mạ Niken-Chrome với lớp mạ dày gấp 3 lần, giúp tăng độ bền và hạn chế bám bẩn, ăn mòn theo thời gian.
Ưu điểm của sen tắm TOTO TBG07302VA/TBW01035V
Tay gạt vận hành êm ái: Sen tắm TOTO TBG07302VA/TBW01035V ứng dụng công nghệ tay gạt độc quyền với van đĩa sứ bền bỉ, cho phép điều chỉnh lưu lượng nước nhẹ nhàng và chính xác.
Tay sen 3 chế độ tiện lợi: Tay sen của sen tắm nhiệt độ TOTO TBG07302VA/TBW01035V được trang bị 3 chế độ phun Mist Spa, Warm Spa và Comfort Wave, mang đến nhiều trải nghiệm tắm thư giãn khác nhau.
Sản phẩm có thiết kế sang trọng, hiện đại
Công nghệ phun sương hiện đại: Với chế độ Mist Spa, TOTO TBG07302VA/TBW01035V tạo lớp sương siêu mịn giúp làm sạch lỗ chân lông và mang lại cảm giác thư giãn tối ưu khi tắm.
Nếu bạn đang tìm kiếm sen tắm nhiệt độ TOTO TBG07302VA/TBW01035V chính hãng với giá tốt, hãy tham khảo ngay tại Hải Linh để được tư vấn và sở hữu sản phẩm chất lượng.