

Bồn tắm nhựa TOTO PAY1730V#W TVBF411 là dòng bồn tắm xây cao cấp mang phong cách tối giản, phù hợp với mọi không gian phòng tắm hiện đại ngày nay. Sản phẩm sở hữu kích thước lý tưởng, giúp người dùng tận hưởng những phút giây ngâm mình thư giãn thoải mái ngay tại nhà.
Bồn tắm nhựa TOTO PAY1730V#W TVBF411
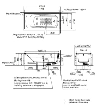
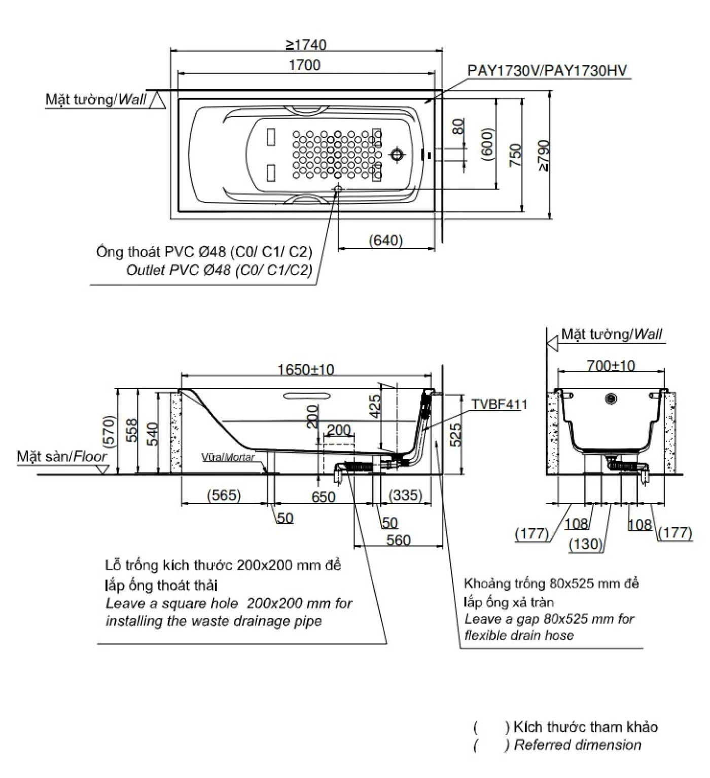
Bản vẽ kỹ thuật bồn tắm nhựa TOTO PAY1730V#W TVBF411
Thiết kế sang trọng, tối ưu không gian: Bồn tắm nhựa TOTO PAY1730V#W TVBF411 gây ấn tượng với kiểu dáng xây không yếm tinh tế cùng độ sâu lòng bồn phù hợp, tạo điểm nhấn thẩm mỹ hoàn hảo cho kiến trúc phòng tắm.
Chất liệu nhựa cao cấp, bền bỉ: Được sản xuất tại Việt Nam theo tiêu chuẩn Nhật Bản, bồn tắm nhựa TOTO PAY1730V#W TVBF411 có bề mặt trắng sáng, chịu lực tốt và cực kỳ dễ dàng vệ sinh trong quá trình sử dụng.
An toàn với bề mặt chống trơn: Điểm cộng lớn của bồn tắm chính là tính năng chống trơn trượt ưu việt, đảm bảo an toàn tối đa cho các thành viên trong gia đình, đặc biệt là người già và trẻ nhỏ.
Trải nghiệm thư giãn chuyên sâu: Nhờ thiết kế điểm tựa đầu thoải mái, bồn tắm nhựa TOTO PAY1730V#W TVBF411 giúp nâng đỡ vùng cổ vai gáy hiệu quả, xua tan mệt mỏi sau ngày làm việc căng thẳng.
Bộ xả nhấn tiện lợi: Đi kèm sản phẩm là bộ xả nhấn bồn tắm TVBF411 đồng bộ, giúp thao tác đóng thoát nước trở nên nhanh chóng, nhẹ nhàng và tăng độ bền cho hệ thống cấp thoát nước.
Đừng bỏ lỡ cơ hội sở hữu bồn tắm nhựa TOTO PAY1730V#W TVBF411 chính hãng với giá tốt nhất và nhận ngay quà tặng hấp dẫn tại hệ thống Showroom Hải Linh ngay hôm nay.