

Bồn tắm massage Govern K-8155 sở hữu thiết kế hình vuông hiện đại cùng hệ thống sục khí và đèn LED, mang đến không gian thư giãn tuyệt vời sau những giờ làm việc căng thẳng. Đây là dòng bồn đôi cao cấp được nhập khẩu chính hãng, giúp người dùng tận hưởng cảm giác thoải mái tối đa với chất lượng bền bỉ theo thời gian.
Tìm hiểu về bồn tắm Massage Govern K-8155
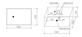
Bản vẽ kỹ thuật bồn tắm Massage Govern K-8155
Thiết kế bồn đôi rộng rãi: Bồn tắm massage Govern K-8155 nổi bật với kiểu dáng hình vuông hiện đại và không gian sử dụng thoải mái cho hai người, giúp nhân đôi trải nghiệm thư giãn tiện nghi.
Chất liệu Acrylic trắng sứ cao cấp: Được sản xuất từ nhựa Acrylic nhập khẩu 100%, bồn tắm Govern K-8155 có khả năng chống trầy xước, chống bám bẩn vượt trội và cực kỳ dễ dàng lau chùi, vệ sinh.
Hệ thống sục massage chuyên sâu: Với 8 mắt sục tuần hoàn tạo sóng mạnh mẽ, dòng nước sẽ trực tiếp tác động vào các vùng cơ hay đau nhức, giúp xua tan mệt mỏi và tái tạo năng lượng tức thì.
Công nghệ sục khí thanh lọc: Hệ thống 12 mắt sục khí đáy của bồn tắm tạo ra các bọt khí li ti pha trộn oxy vào nước, hỗ trợ làm sạch sâu lỗ chân lông và nuôi dưỡng làn da mịn màng.
An toàn khi vận hành: Bồn tắm massage Govern K-8155 đảm bảo an toàn cho người dùng nhờ hệ thống chống giật tự động và van xả tràn thông minh giữ cho mặt sàn luôn khô thoáng.
Ánh sáng LED đa sắc sang trọng: Hệ thống đèn LED tích hợp trong lòng bồn và bên ngoài mặt yếm giúp bồn tắm Govern K-8155 trở nên lung linh, huyền ảo, mang lại vẻ đẹp đẳng cấp cho không gian nội thất.
Tiện ích đi kèm hoàn hảo: Sản phẩm được trang bị đầy đủ gối đầu cao su mềm mại, sen tay linh động và bộ điều chỉnh chức năng nước ngay tầm tay, cực kỳ thuận tiện khi sử dụng.
Quý khách hãy liên hệ ngay với Hải Linh để sở hữu bồn tắm massage Govern K-8155 chính hãng với mức giá ưu đãi cùng chính sách bảo hành uy tín tại nhà.