



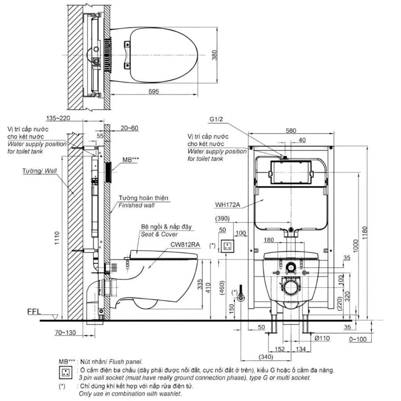
Kích thước: 595D x 380W x 335H mm
Màu sắc: Trắng
Hệ thống xả: Tornado
Lượng nước xả: 4.5/3L
Thiết kế: Thân dài, thân kín
Tâm xả: 220mm
Bồn cầu thông minh TOTO CW812REA/TCF23460AAA/WH172AT/TCA465/MB174P là bộ thiết bị vệ sinh treo tường cao cấp, tích hợp nắp rửa điện tử WASHLET hiện đại, mang đến giải pháp chăm sóc cá nhân tiện nghi và an toàn cho gia đình. Sản phẩm sở hữu thiết kế âm tường tinh gọn, tối ưu diện tích cùng công nghệ men sứ CEFIONTECT chống bám bẩn và hệ thống xả xoáy Tornado mạnh mẽ, giúp nâng tầm không gian phòng tắm chuẩn sang trọng.
Bồn cầu thông minh TOTO CW812REA/TCF23460AAA/WH172AT/TCA465/MB174P
Bản vẽ kỹ thuật bồn cầu TOTO CW812REA/TCF23460AAA/WH172AT/TCA465/MB174P
Hệ thống xả Tornado siêu mạnh, siêu êm, tiết kiệm nước:Công nghệ xả xoáy Tornado tạo dòng nước xoáy 360° mạnh mẽ, cuốn trôi chất bẩn nhanh chóng chỉ trong một lần xả. Đồng thời, hệ thống vận hành êm ái, hạn chế tiếng ồn và tối ưu lượng nước sử dụng, giúp tiết kiệm chi phí sinh hoạt lâu dài.
Xả xoáy Tornado TOTO mạnh mẽ
Nắp rửa TOTO TCF23460AAA giấu dây hiện đại: Thiết kế nắp rửa giấu dây tinh tế mang đến tổng thể liền mạch, gọn gàng và tăng tính thẩm mỹ cho không gian phòng tắm. Kiểu dáng hiện đại giúp sản phẩm dễ dàng phối hợp với nhiều phong cách nội thất từ tối giản đến cao cấp.

Nắp rửa TOTO TCF23460AAA giấu dây hiện đại
Điều khiển bên hông tiện lợi: Bảng điều khiển được bố trí ngay bên hông với các nút bấm rõ ràng, dễ thao tác cho mọi đối tượng sử dụng. Người dùng có thể nhanh chóng lựa chọn các chế độ rửa và tiện ích chỉ với một chạm đơn giản.
Công nghệ phun sương lòng bồn cầu TOTO CW812REA/TCF23460AAA/WH172AT/TCA465/MB174P: Trước mỗi lần sử dụng, hệ thống tự động phun lớp sương mỏng lên bề mặt lòng cầu nhằm hạn chế chất bẩn bám dính. Nhờ đó, việc xả rửa hiệu quả hơn và giảm đáng kể công sức vệ sinh sau khi dùng.
Vòi rửa Massage đa chức năng êm ái: Vòi rửa tích hợp nhiều chế độ như rửa sau, rửa trước cho nữ và massage nhẹ nhàng, mang lại cảm giác sạch sẽ và thư giãn. Áp lực nước được điều chỉnh linh hoạt, đảm bảo êm ái và phù hợp với từng nhu cầu cá nhân.
Thiết kế mới gọn gàng, thanh lịch: Kiểu dáng nắp rửa được cải tiến mỏng nhẹ, tinh giản chi tiết để tạo cảm giác thanh thoát và sang trọng hơn. Tổng thể sản phẩm giúp phòng tắm trông hiện đại, rộng rãi và chuyên nghiệp hơn.
Đầy đủ tích Washlet cơ bản: Bồn cầu TOTO CW812REA/TCF23460AAA/WH172AT/TCA465/MB174P tích hợp đầy đủ các tính năng thiết yếu như bệ ngồi sưởi ấm, sấy khô, khử mùi tự động và vòi rửa đa chế độ. Những tiện ích này mang lại trải nghiệm vệ sinh thoải mái, dễ chịu suốt bốn mùa.
Công nghệ nước điện phân EWATER+ diệt khuẩn: EWATER+ tự động làm sạch vòi rửa bằng nước điện phân trước và sau khi sử dụng, giúp tiêu diệt vi khuẩn và ngăn ngừa mùi hôi hiệu quả. Nhờ đó, vòi rửa luôn sạch sẽ, an toàn và đảm bảo vệ sinh tối đa cho người dùng.

Công nghệ nước điện phân EWATER+ TOTO
Sự kết hợp giữa kiểu dáng thanh lịch, khả năng tiết kiệm nước hiệu quả và các tính năng vệ sinh tự động thông minh giúp bồn cầu TOTO CW812REA/TCF23460AAA/WH172AT/TCA465/MB174P trở thành lựa chọn lý tưởng cho những công trình hiện đại. Để mua hàng chính hãng, hưởng giá tốt và nhận tư vấn kỹ thuật chi tiết, bạn có thể trải nghiệm trực tiếp tại showroom Hải Linh.