



Kích thước: L722 x W420 x H655mm
Màu sắc: Trắng
Hệ thống xả: Tornado
Lượng nước xả: 4.8L
Bồn cầu điện tử TOTO MS188VKW16 sở hữu thiết kế thân kín sang trọng cùng lớp men sứ CEFIONTECT trắng sáng, giúp ngăn ngừa bám bẩn và nâng tầm đẳng cấp cho không gian phòng tắm. Với hệ thống xả xoáy Tornado mạnh mẽ cùng kích thước chuẩn mang lại cảm giác thoải mái tối ưu, đây chính là giải pháp vệ sinh thông minh và thẩm mỹ hàng đầu hiện nay.
Tìm hiểu về bồn cầu điện tử TOTO MS188VKW16/T53P100VR
Lưu ý: Bích nối sàn T53P100VR: phụ kiện không đóng gói cùng thân cầu (giá trên đã bao gồm Bích nối sàn)
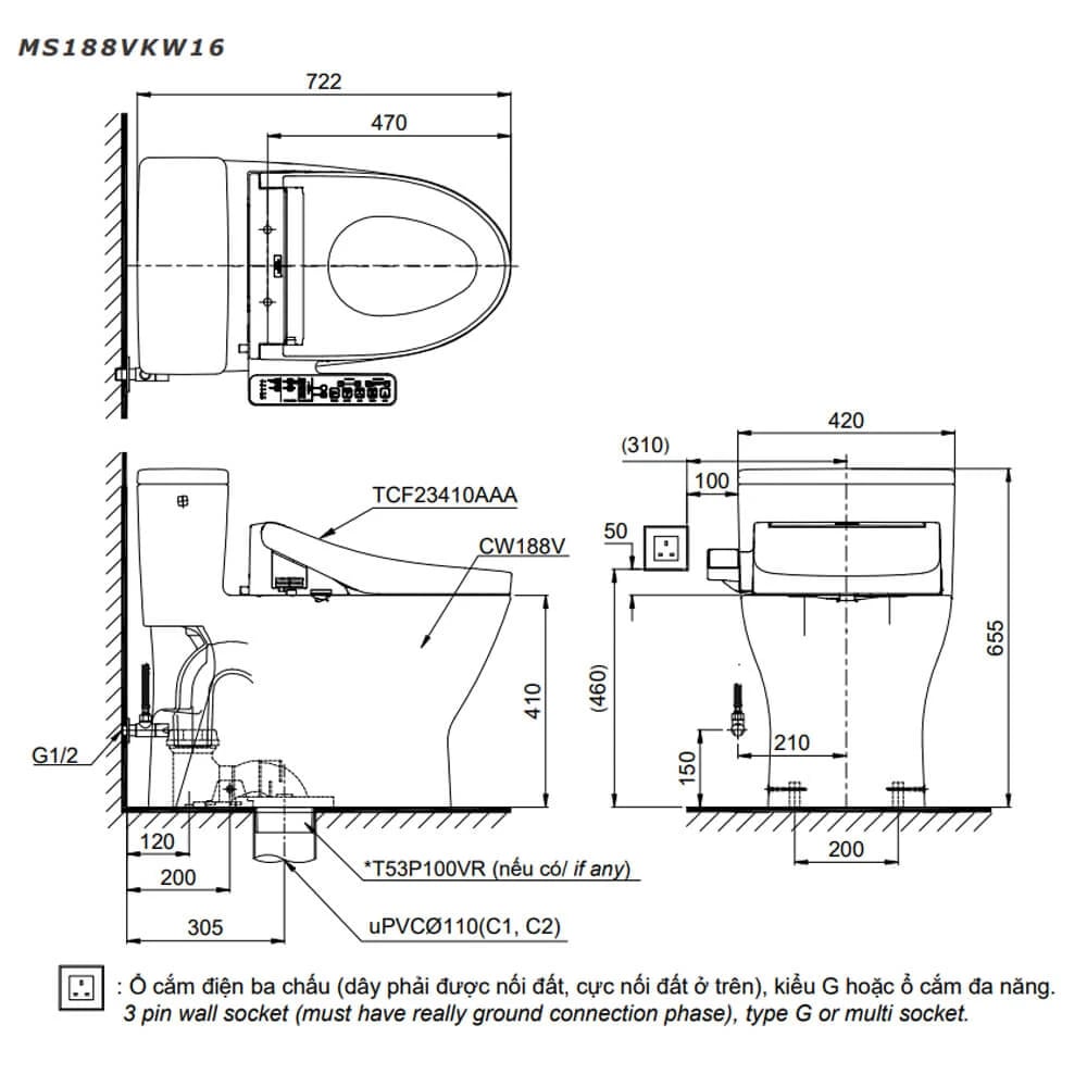
Bản vẽ kỹ thuật bồn cầu điện tử TOTO MS188VKW16/T53P100VR
Hệ thống xả TORNADO mạnh mẽ và tiết kiệm nước: Bồn cầu điện tử TOTO MS188VKW16/T53P100VR ứng dụng hệ thống xả TORNADO với dòng nước xoáy 360 độ giúp cuốn trôi mọi chất thải chỉ trong một lần nhấn. Công nghệ này không chỉ đảm bảo lòng cầu luôn sạch bóng mà còn giúp gia đình bạn tiết kiệm nước tối đa.
Men sứ CEFIONTECT chống bám dính: Lớp men sứ CEFIONTECT trên bồn cầu có bề mặt siêu nhẵn mịn, ngăn chặn vi khuẩn và chất bẩn bám dính. Nhờ đặc tính chống bám bẩn vượt trội, sản phẩm luôn giữ được độ sáng bóng bền đẹp theo thời gian và giúp việc vệ sinh trở nên cực kỳ dễ dàng.
Ưu điểm nổi bật của bồn cầu điện tử TOTO MS188VKW16/T53P100VR
Thiết kế RIMLESS loại bỏ nơi trú ngụ của vi khuẩn: Bồn cầu TOTO MS188VKW16/T53P100VR sở hữu thiết kế vành kín RIMLESS đột phá, giúp loại bỏ các khe hở khuất tầm mắt, nơi chất bẩn thường ẩn nấp. Cải tiến này không chỉ giúp việc lau chùi nhanh chóng hơn mà còn hỗ trợ dòng nước xả xoáy bao phủ toàn diện, giảm thiểu tiếng ồn hiệu quả.
Công nghệ PREMIST tự động phun sương bảo vệ: Trước mỗi lần sử dụng, bồn cầu điện tử TOTO MS188VKW16/T53P100VR sẽ tự động phun một lớp sương nước PREMIST lên bề mặt lòng cầu để tạo màng ngăn cách. Lớp màng hơi nước này giúp chất bẩn khó bám đọng, từ đó hạn chế việc dùng hóa chất tẩy rửa mạnh và bảo vệ sức khỏe người dùng.
Vòi rửa AIR-IN WONDER WAVE rửa sạch toàn diện: Công nghệ AIR-IN WONDER WAVE trên bồn cầu điện tử TOTO MS188VKW16/T53P100VR tạo ra dòng nước ấm, kết hợp bọt khí mềm mại, mang lại cảm giác làm sạch êm ái. Với khả năng điều chỉnh áp lực và chế độ phun đa dạng, vòi rửa thông minh này đảm bảo sự hài lòng và thư giãn cho người dùng.
Thiết kế tinh tế, kiểu dáng hiện đại
Nước điện phân EWATER+ khử trùng lòng cầu và vòi rửa: Bồn cầu TOTO MS188VKW16/T53P100VR sử dụng nước điện phân EWATER+ có tính kháng khuẩn cao để tự động làm sạch vòi rửa cả bên trong lẫn bên ngoài. Nguồn nước này giúp tiêu diệt vi khuẩn và ngăn ngừa ố vàng hiệu quả, sau đó tự động trở về trạng thái nước máy lành tính, thân thiện với môi trường.
Tiện ích sấy khô, sưởi ấm và khử mùi: Mọi nhu cầu vệ sinh đều trở nên đẳng cấp hơn khi bồn cầu TOTO MS188VKW16/T53P100VR tích hợp các tính năng sưởi ấm bệ ngồi, sấy khô khí ấm và khử mùi tự động. Những công nghệ nắp rửa Washlet dòng C2 này giúp không gian phòng tắm luôn khô thoáng, thơm tho và mang lại trải nghiệm sống hiện đại.
Như vậy, bồn cầu điện tử TOTO MS188VKW16/T53P100VR chính là lựa chọn hoàn hảo cho không gian tắm hiện đại, mang lại trải nghiệm vệ sinh thông minh và thư giãn tuyệt đối cho gia đình bạn.