

Bồn cầu 2 khối TOTO CS767RT10 thuộc dòng sản phẩm cao cấp của TOTO, được sản xuất trên dây chuyền công nghệ hiện đại, đảm bảo độ bền vượt trội và đáp ứng hoàn hảo nhu cầu vệ sinh. Với sự kết hợp giữa thiết kế sang trọng và nắp đóng êm tinh tế, mẫu bồn cầu này hứa hẹn sẽ mang lại trải nghiệm tiện nghi cho không gian phòng tắm.

Bồn cầu 2 khối TOTO CS767RT10

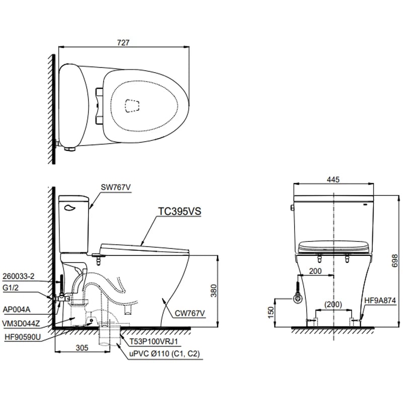
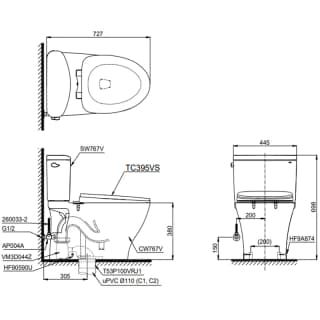
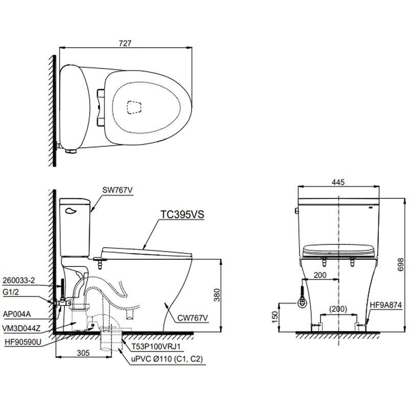
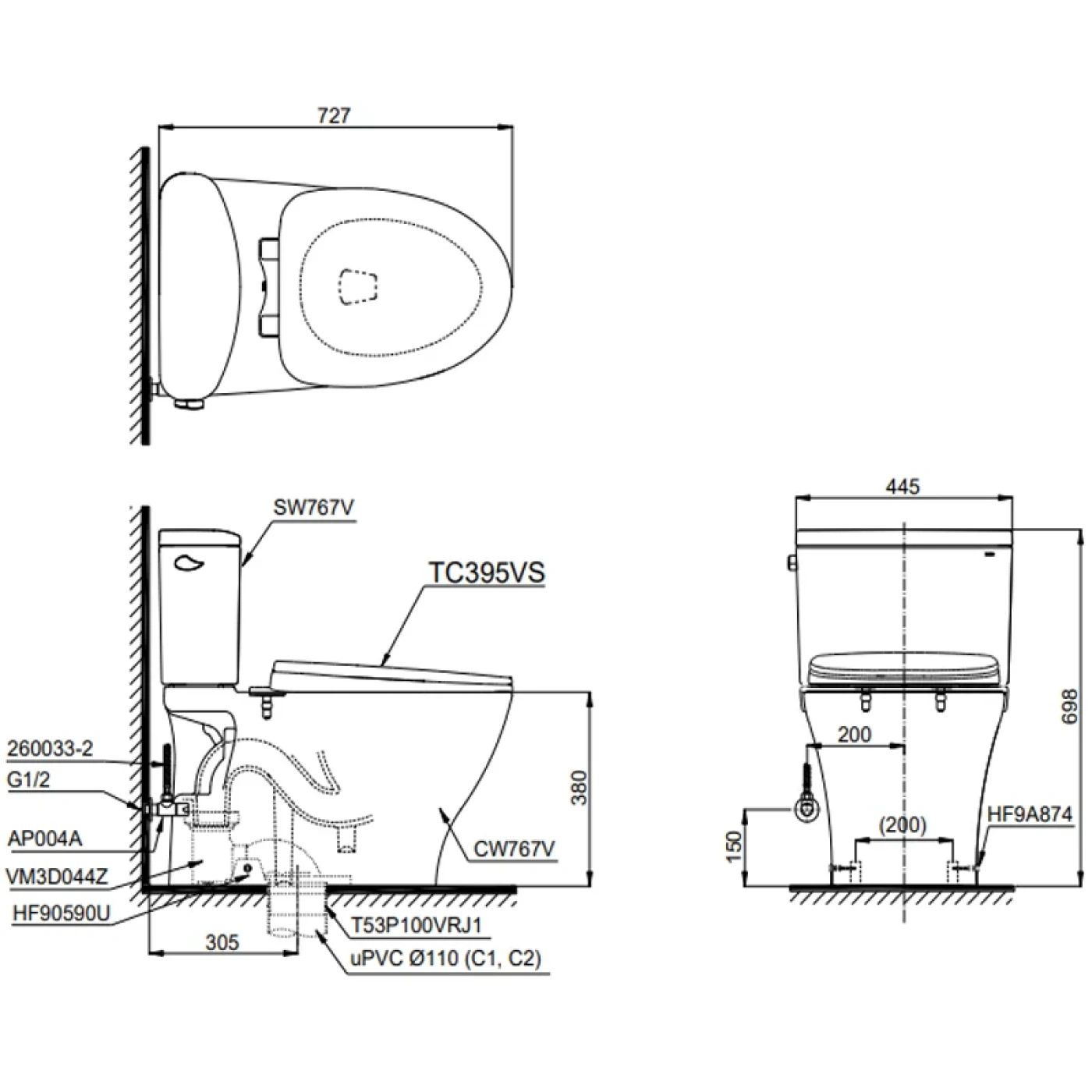
Bản vẽ kỹ thuật Bồn cầu 2 khối TOTO CS767RT10
Lớp men sứ chống bám bẩn Cefiontect: Toàn bộ bề mặt bồn cầu 2 khối TOTO CS767RT10 được phủ lớp men siêu mịn, giúp ngăn chặn sự bám dính của vi khuẩn và chất thải. Đặc tính ưa nước của lớp men này giúp mọi vết bẩn dễ dàng bị cuốn trôi, giữ cho bề mặt sứ luôn sáng bóng và sạch sẽ.

Men sứ công nghệ Cefiontect
Hệ thống xả Tornado mạnh mẽ và tiết kiệm: Bồn cầu 2 khối TOTO CS767RT10 sử dụng công nghệ xả xoáy Tornado tạo lực quét 360 độ để loại bỏ hoàn toàn cặn bẩn mà vẫn tiết kiệm nước tối ưu. Hệ thống này vận hành cực kỳ êm ái, giảm thiểu tiếng ồn khó chịu để mang lại không gian yên tĩnh cho gia đình bạn.

Hệ thống xả Tornado mạnh mẽ và tiết kiệm nước hiệu quả
Thiết kế vành kín thông minh: Với thiết kế vành kín hiện đại, bồn cầu TOTO CS767RT10 loại bỏ hoàn toàn các khe hở khuất tầm mắt, nơi vi khuẩn thường tích tụ. Cải tiến này không chỉ đảm bảo vệ sinh tối đa mà còn giúp công việc lau chùi hàng ngày đơn giản và nhanh chóng hơn.
Nắp đóng êm ái và không gây tiếng ồn: Bồn cầu 2 khối TOTO CS767RT10 đi kèm nắp đóng êm TC395VS, giúp triệt tiêu tiếng va đập mạnh khi đóng mở. Tính năng này mang lại trải nghiệm sử dụng tinh tế, đặc biệt phù hợp với những gia đình có người già và trẻ nhỏ, tránh làm ảnh hưởng đến giấc ngủ.
Chất liệu nhựa cao cấp bền bỉ: Nắp đậy của bồn cầu 2 khối TOTO CS767RT10 được sản xuất từ nhựa PP cao cấp, có khả năng chịu lực tốt và chống ố vàng. Bề mặt nắp luôn giữ được vẻ đẹp như mới và độ bền lâu dài, góp phần nâng cao tính thẩm mỹ cho tổng thể không gian phòng tắm.
Hãy đến ngay Showroom Hải Linh để được tư vấn chi tiết và sở hữu bồn cầu 2 khối TOTO CS767RT10 chính hãng với mức giá cạnh tranh cùng chính sách vận chuyển, lắp đặt chuyên nghiệp.