

Bồn cầu 2 khối COTTO C17017 gây ấn tượng với thiết kế két nước hình tam giác độc đáo, là giải pháp giúp tối ưu diện tích hoàn hảo cho những phòng tắm nhỏ hẹp. Cùng Hải Linh khám phá ngay những ưu điểm vượt trội và công nghệ kháng khuẩn đỉnh cao của mẫu bồn cầu COTTO C17017 trong bài viết dưới đây.

Bồn cầu 2 khối COTTO C17017

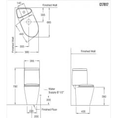
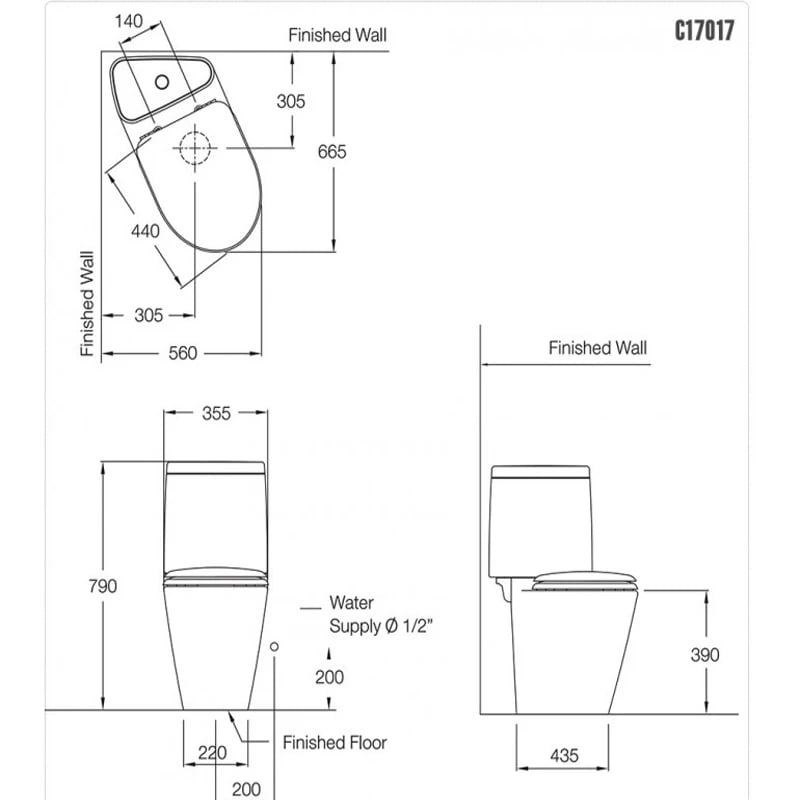
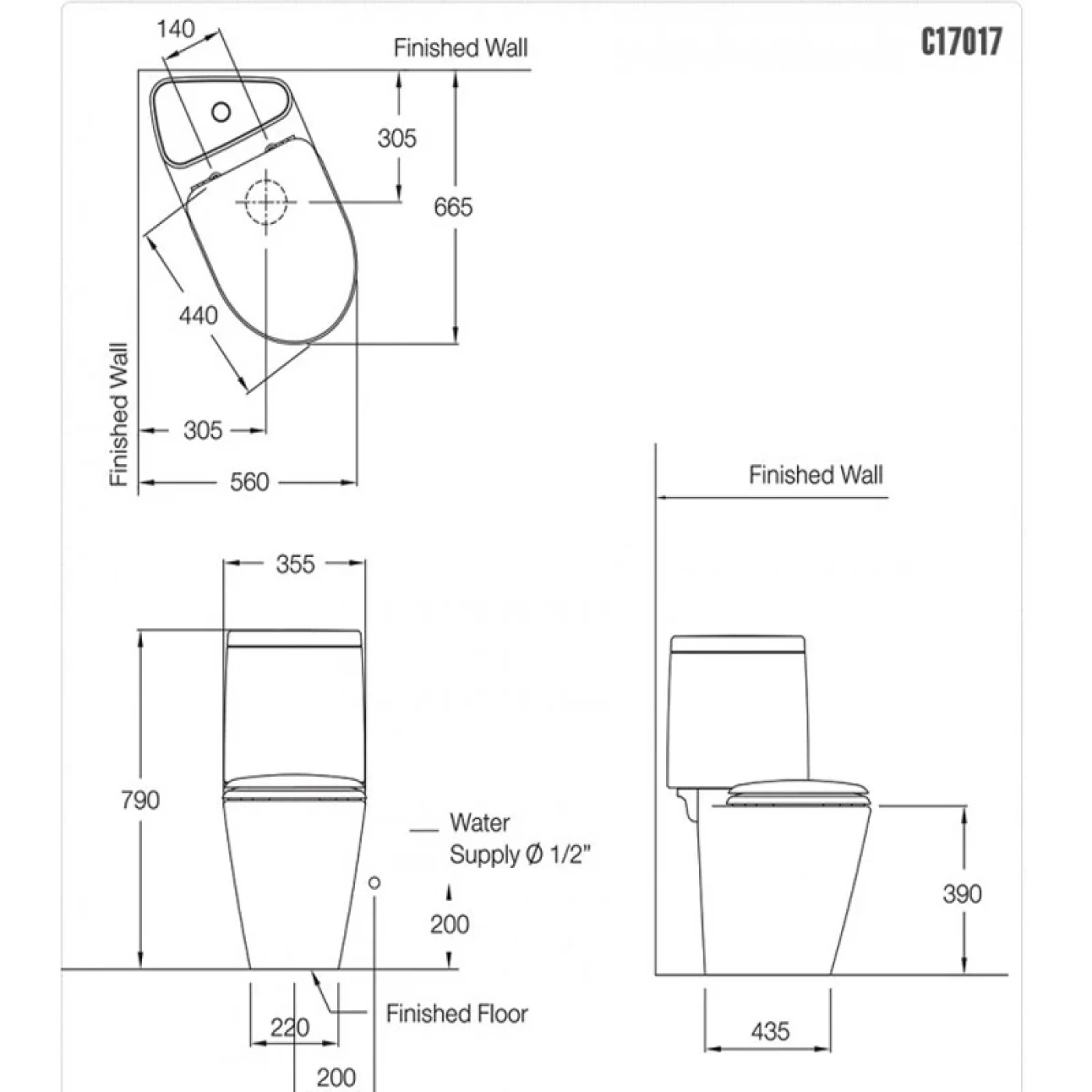
Bản vẽ kỹ thuật Bồn cầu 2 khối COTTO C17017
Thiết kế đặt góc đột phá: Bồn cầu 2 khối Cotto C17017 sở hữu két nước hình tam giác thông minh, giúp tận dụng triệt để những góc chết trong phòng tắm, biến không gian nhỏ hẹp trở nên rộng rãi và khoa học hơn.
Công nghệ kháng khuẩn Ultra Clean+: Với bề mặt được phủ lớp men kháng khuẩn đặc biệt, bồn cầu 2 khối Cotto C17017 có khả năng ức chế sự phát triển của vi khuẩn lên đến 99% trong vòng 24h. Đảm bảo không gian vệ sinh luôn sạch khuẩn và an toàn cho sức khỏe.
Hệ thống xả Wash Down mạnh mẽ: Dù tiết kiệm nước với chế độ 3L/4.5L, nhưng bồn cầu Cotto C17017 vẫn duy trì lực xả Wash Down cực mạnh, giúp cuốn trôi mọi vết bẩn cứng đầu chỉ trong một lần nhấn.
Thoải mái và dễ dàng vệ sinh: Thiết kế thân dài kết hợp cùng nắp ngồi êm ái mang đến trải nghiệm sử dụng thư thái. Đồng thời bề mặt sứ tối giản các góc cạnh giúp việc lau chùi bồn cầu 2 khối Cotto C17017 trở nên nhanh chóng và đơn giản hơn.
Nếu bạn đang tìm kiếm giải pháp tối ưu cho không gian phòng tắm nhỏ, hãy liên hệ ngay với Showroom Hải Linh để được tư vấn chi tiết và sở hữu bồn cầu 2 khối Cotto C17017 chính hãng với giá ưu đãi.