
Bồn cầu 1 khối COTTO C103327 thuộc bộ sưu tập Simply Connect là thiết bị vệ sinh cao cấp nhập khẩu Thái Lan, phù hợp không gian phòng tắm hiện đại. Sản phẩm nổi bật với thiết kế thân dài liền khối sang trọng, tạo cảm giác gọn gàng và dễ vệ sinh. Công nghệ kháng khuẩn Ultra Clean+ kết hợp hệ thống xả Siphon Vortex/Triplex giúp xả sạch hiệu quả và tiết kiệm nước.

Tìm hiểu về bồn cầu 1 khối Cotto C103327

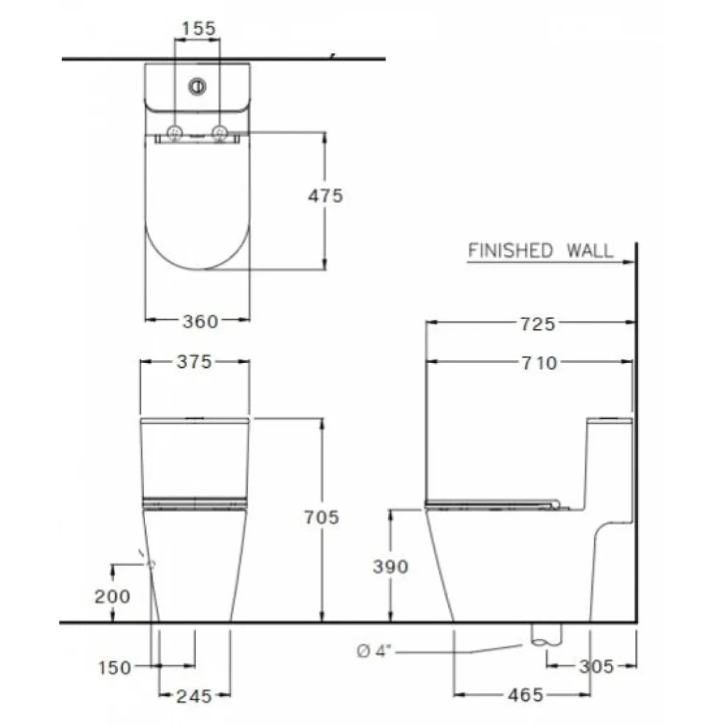
Bản vẽ kỹ thuật bồn cầu 1 khối Cotto C103327
Thiết kế sang trọng, hiện đại: Kiểu dáng tinh gọn giúp bồn cầu 1 khối Cotto C103327 phù hợp nhiều không gian từ nhà ở đến công trình thương mại. Thiết kế hài hòa tạo cảm giác gọn gàng và nâng cao thẩm mỹ phòng tắm. Cotto C103327 dễ phối hợp với nhiều phong cách nội thất khác nhau.

Bồn cầu 1 khối Cotto C103327 thiết kế sang trọng, hiện đại
Nắp đóng êm hạn chế tiếng ồn: Nắp cầu đóng chậm giúp giảm tiếng va đập khi sử dụng. Tạo không gian yên tĩnh, phù hợp sinh hoạt ban đêm hoặc gia đình có trẻ nhỏ. Tính năng này giúp bồn cầu 1 khối Cotto C103327 mang lại trải nghiệm sử dụng dễ chịu hơn.
Xả thẳng cuốn trôi hiệu quả: Cơ chế xả thẳng tạo lực nước mạnh giúp cuốn trôi chất bẩn nhanh chóng. Giảm tình trạng tồn đọng sau khi sử dụng. Cotto C103327 phù hợp cho nhu cầu sử dụng thường xuyên tại gia đình và công trình.
Hệ thống xả Siphon Jet tiết kiệm nước: Công nghệ Siphon Jet tạo lực xoáy mạnh giúp làm sạch hiệu quả chỉ với 3.6L nước mỗi lần xả. Vừa đảm bảo khả năng làm sạch vừa hạn chế lãng phí nước. Đây là ưu điểm giúp bồn cầu 1 khối Cotto C103327 tiết kiệm chi phí sử dụng lâu dài.
Công nghệ kháng khuẩn Ultra Clean+: Ultra Clean+ giúp ức chế đến 99% vi khuẩn trong vòng 24 giờ sử dụng. Bề mặt men sứ luôn sạch và hạn chế bám bẩn. Nhờ đó Cotto C103327 duy trì môi trường vệ sinh an toàn cho người dùng.

Công nghệ kháng khuẩn Ultra Clean+ kháng khuẩn
Chiều cao thân cầu thoải mái: Thiết kế chiều cao hợp lý giúp tư thế ngồi tự nhiên và dễ chịu. Giảm cảm giác mỏi khi sử dụng trong thời gian dài. Bồn cầu 1 khối Cotto C103327 phù hợp cho nhiều độ tuổi trong gia đình.
Xem thêm: Bồn cầu van xả trực tiếp Cotto C1320
Bồn cầu 1 khối Cotto C103327 mang đến trải nghiệm sử dụng tiện nghi nhờ nắp đóng êm và khả năng vận hành ổn định lâu dài. Thiết kế hiện đại cùng công nghệ làm sạch tối ưu giúp không gian phòng tắm luôn sạch sẽ và thoải mái. Quý khách có thể tham khảo và trải nghiệm trực tiếp tại showroom Hải Linh để được tư vấn chi tiết.